Stilvolles Wohnen am Ring: Erstbezug in großzügiger 3-Zimmer-Wohnung mit Einbauküche

map-pin Friedenauer Höhe 19A, 12159 Berlin
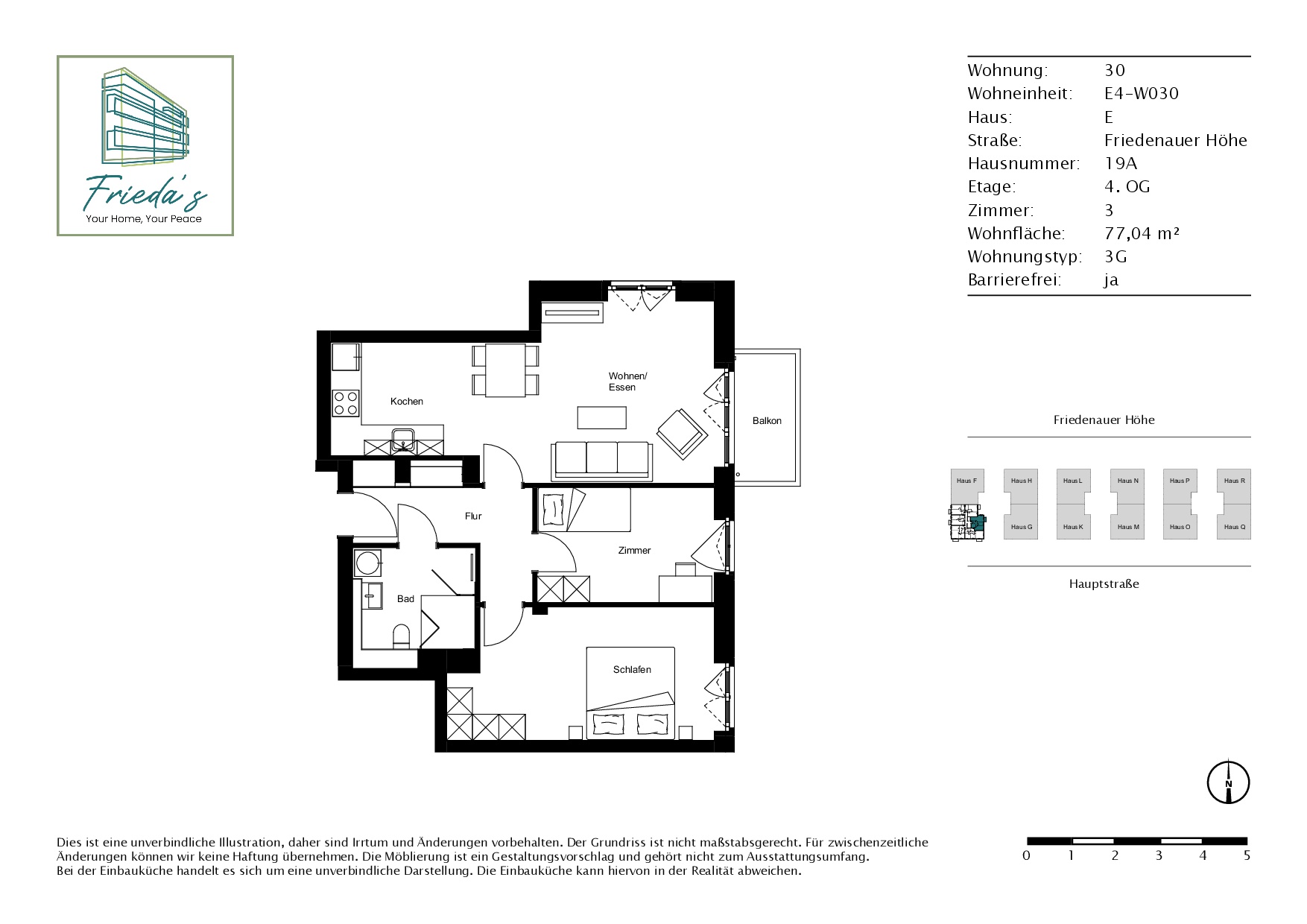
Objekttyp: Etagenwohnung
Etage: 4 von 4
ID: E4-W030
76,33 m²
3
mit Einbauküche
1
Balkon/Terrasse
Kaltmiete: 1.960 €
Nebenkosten: 275 €
Kaution: 5.880 €
Verfügbar ab: ab sofort
2.235 € Warmmiete

Objektbeschreibung & Ausstattung

Mit dem FRIEDAS Berlin entsteht auf einem Areal von ca. 24.366 m2 ein modernes Wohnquartier. Der gesamte Neubau-Komplex in der Friedenauer Höhe umfasst sechs Gebäude mit insgesamt 396 Wohnungen, die in drei Bauabschnitten fertiggestellt werden. Im ersten Bauabschnitt entstehen 132 Wohnungen mit einem bis vier Zimmern, teilweise barrierefrei, sowie 69 TG-Stellplätze. Neben der Tiefgarage befinden sich im Untergeschoss auch Abstell-, Fahrrad-, Technik- und Müllräume sowie die Mieterkeller. Die moderne Architektur, bodentiefe Fenster und eine harmonische Farbgestaltung der Fassaden überzeugen ebenso wie die abwechslungsreich begrünten Außenanlagen. In Massivbaubauweise errichtet und erbaut gemäß den aktuell gültigen Bestimmungen der EnEV, erfüllen sämtliche Gebäude die Standards des GEG und „Effizienzhaus 55 EE“ sowie die Vorschriften des erhöhten Schallschutzes. Die Wärme- und Warmwasserversorgung sichert ein Blockheizkraftwerk. Die gärtnerische Gestaltung der Freiflächen umfasst Rasen und Pflanzbeete mit Stauden sowie Hecken, Sträucher und Kleingehölze. Die Abgrenzung der Erdgeschoss-Terrassen erfolgt ebenfalls durch Hecken. Ein Spielbereich für die Kleinsten mit Sandkasten und Spielgeräten wird ergänzt durch ebenerdige Spielflächen für Schach, Mühle oder Mensch-ärgere-dich-nicht.

Alle Besonderheiten:

  • Mehrschicht-Fertigparkett Eiche in den Wohnräumen
  • Feinsteinzeug-Fliesen in Bädern, WCs und Abstellräumen
  • Fußbodenheizung
  • zusätzlicher Handtuchheizkörper in den Bädern
  • Terrasse/Balkon/Dachterrasse
  • hochwertige Einbauküchen
  • Elektrisch betriebene Rollläden
  • Aufzug
  • Video-Gegensprechanlage
  • Glasfaseranschluss
  • Mieter-Keller
  • lichte Raumhöhe 2,69-2,73
  • 3-fach verglaste Fenster
  • autofreie Zone im Quartier
  • kostenpflichtige Stellplätze

Energieausweis

Art: Bedarfsausweis
Baujahr: 2025
Endenergiebedarf: 55.1 kWh/(m²*a)
Baujahr lt. Energieausweis: 2024
Energieausweis: Bedarfsausweis
Wesentlicher Energieträger: Fernwärme
Energieausweis gültig bis: 09.09.2034
Klasse: B
0 50 100 150 200 250 >250

Lage

ÖPNV, Nahversorgung und Schule – alles ist bequem und schnell zu erreichen. Nur 250 Meter entfernt liegt die Bushaltestelle, während S- und U-Bahn nach rund 500 Metern erreicht sind. Im Umkreis von ca. 750 Metern sorgen Lidl, Aldi, EDEKA und Netto für den Einkauf täglichen Bedarfs. Auch Parks, Spielplätze und Sportstätten befinden sich im nahen Umfeld des FRIEDAS Berin – ebenso wie zahlreiche Cafés und Restaurants mit kulinarischen Angeboten aus (fast) der ganzen Welt. Besten Service in Sachen Mobilität bieten die Sharing Points für Scooter, Bikes und Cars, die allesamt fußläufig und weniger als sechs Minuten erreicht sind. Ebenso schnell gelangt man zur S- und U-Bahnstation Innsbrucker Platz sowie zu den Bushaltestellen Hähnelstraße und Ceciliengärten.
Entfernungen:
- Flughafen Berlin Brandenburg ca. 24 km / 46 min. ÖPNV / 24 min. Pkw
- Alexanderplatz ca. 9 km / 38 min. ÖPNV / 27 min. Pkw
- Autobahn A100 ca. 1 km / 3 min. Pkw
- Grunewaldsee ca. 12 km / 54 min. ÖPNV / 20 min. Pkw

Sonstiges

Wir bitten Sie Terminanfragen über das Kontaktformular zu senden.

Bei den Bildern handelt es sich um unverbindliche Visualisierungen und Bilder der Musterwohnung. Gerne können Sie sich im Zuge einer Besichtigung der Musterwohnung selbst vom FRIEDA'S überzeugen.

HAFTUNGSAUSSCHLUSS:
Diese Anzeige dient nur der ersten Information und stellt kein Vertragsangebot dar. Die Anzeige begründet keine vertraglichen Ansprüche. Der Inhalt und die Angaben wurden nach bestem Wissen und Gewissen ermittelt. Für Richtigkeit und Vollständigkeit wird keine Haftung übernommen.


Sofortanfrage zum Objekt

    Mit * gekennzeichnete Felder sind Pflichtangaben. Persönliche Daten werden absolut vertraulich behandelt und nicht unbefugt an Dritte weitergegeben.