Sonnige 2-Zimmer-Neubauwohnung mit Terrasse

map-pin Ernst-Hornung-Straße 7, 74523 Schwäbisch Hall
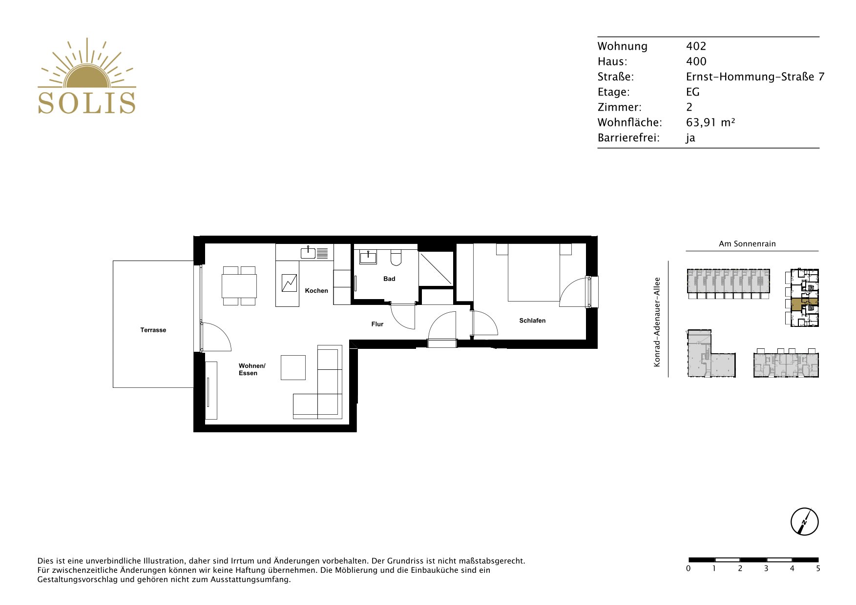
Objekttyp: Erdgeschosswohnung
ID: so32
63,91 m²
2
1
Kaltmiete: 775 €
Nebenkosten: 225 €
Kaution: 2.325 €
Verfügbar ab: 01.12.2025
1.000 € Warmmiete

Objektbeschreibung & Ausstattung

Beginnend mit einer kleinen Diele als Eingangsbereich gelangt man auf der rechten Seite direkt in das separate geräumige Schlafzimmer. Weiterhin verfügt die angebotene Wohnung über ein innenliegendes Badezimmer mit großer modernen Dusche inkl. Glastrennwänden. Der sich anschließende offene Wohnbereich bietet mit den bereits vorinstallierten Anschlüssen für eine Einbauküche viel Raum für verschiedene Einrichtungsideen. Ein eigener Waschmaschinenanschluss im gemeinsamen Waschraum sowie ein separates Kellerabteil befinden sich im Untergeschoss.

Alle Besonderheiten:

  • Alle Besonderheiten auf einen Blick:
  • Eichen-Parkett in den Wohnräumen
  • Steinzeug-Bodenfliesen in Bädern und WCs
  • Fußbodenheizung
  • Terrasse, Balkon, Loggia oder Dachterrasse
  • 3-fach Verglasung der Fenster
  • Elektrisch betriebene Rollläden im Wohnzimmer
  • Aufzug
  • Video-Gegensprechanlage

Energieausweis

Art: Bedarfsausweis
Baujahr: 2023
Endenergiebedarf: 61.8 kWh/(m²*a)
Baujahr lt. Energieausweis: 2021
Energieausweis: Bedarfsausweis
Wesentlicher Energieträger: Fernwärme
Energieausweis gültig bis: 07.09.2031
Klasse: B
0 50 100 150 200 250 >250

Lage

Fast in der Mitte Hessentals gelegen, sind es nur 2,4 Kilometer bis zum Stadtzentrum Schwäbisch Hall – und weit weniger zu den Einrichtungen des täglichen Bedarfs. Praktisch vor der Haustür liegen Supermarkt und Tankstelle. Eine Bäckerei und ein Frischemarkt sind nur ca. 400 Meter entfernt, ebenso die Grundschule Hessental. Zum Kindergarten sind es ca. 600 Meter. Ähnlich schnell erreichbar ist das Freizeitzentrum Schenkensee mit Freizeit- und Erlebnisbad. Gut ausgebaut sind Geh- und Radwege im Viertel. Wer die Buslinien des ÖPNV nutzen möchte, ist mit aktuell 14 Linien mobil. Ergänzend zu den regulären Buslinien, die mehr als 370 Haltestellen bedienen, bietet der Rufbus abends, an Wochenenden und Feiertagen zusätzliche Fahrten. Außerdem kann man das Carsharing-Angebot des Vereins Teilauto nutzen.


Sofortanfrage zum Objekt

    Mit * gekennzeichnete Felder sind Pflichtangaben. Persönliche Daten werden absolut vertraulich behandelt und nicht unbefugt an Dritte weitergegeben.