Schöne 3-Zimmer Wohnung mit Dachterrasse unweit vom Schloss Charlottenburg!

map-pin Tauroggener Straße 35A, 10589 Berlin
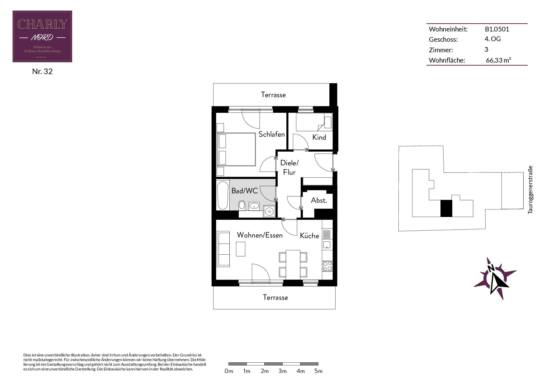
Objekttyp: Dachgeschosswohnung
Etage: 4 von 4
ID: B-CN-32-2
66,33 m²
3
mit Einbauküche
1
Kaltmiete: 1.675 €
Nebenkosten: 323 €
Kaution: 5.025 €
Verfügbar ab: 01.04.2026
1.998 € Warmmiete

Objektbeschreibung & Ausstattung

Das Gebäudeensemble CHARLY NORD bietet auf gut 4.500 Quadratmetern 57 modern ausgestattete Mietwohnungen.

Die hier angebotene 3-Zimmer-Wohnung mit Terrasse liegt im 4. Obergeschoss und verfügt über eine Wohnfläche von ca. 66 m². Die Wohnung betritt man durch einen Flur. Das kombinierte Wohn- und Esszimmer bietet direkten Zugang zu der geräumigen Terrasse. Angrenzend befindet sich die Einbauküche inklusive der Einbaugeräte.
Das Badezimmer ist mit einer Badewanne sowie einem Waschmaschinen- und Trockneranschluss ausgestattet. Von den beiden Schlafzimmern aus erreichen Sie die zweite Dachterrasse.

Das Gebäudeensemble besteht aus zwei unabhängigen Gebäudeteilen und steht als KfW-Effizienzhaus 55 für energiesparendes Wohnen. Das sechsgeschossige Vorderhaus zur Tauroggener Straße fügt sich mit seiner sachlichen Fassadengestaltung dezent in die umliegende Architektur. Freitragende Balkone, vorgelagerte Loggien und bodentiefe Fensterfronten erzeugen eine offene und moderne Anmutung.

Das ähnlich gestaltete, L-förmige Gartenhaus besteht aus vier Vollgeschossen und liegt im ruhigen und weitläufigen Innenhof. Dieser ist aufwändig begrünt und bietet mit seinen Spielflächen, Sitzgelegenheiten und Blumenbeeten eine hohe Aufenthaltsqualität. Auch Fahrradständer sind vorhanden. Beide Gebäudeteile verfügen jeweils über Aufzüge und sind durch eine gemeinsame Tiefgarage mit 29 PKW-Stellplätzen verbunden.

Alle Besonderheiten:

  • Einbauküche mit Markengeräten
  • Fußbodenheizung in der ganzen Wohnung
  • Terrasse, Loggia oder Balkon zu jeder Wohnung
  • bodentiefe, mehrfach verglaste Fenster und Fenstertüren
  • innenliegende Plissees in den Obergeschossen, elektrische Außenrolläden in den Erdgeschosswohnungen
  • helles Eichenechtholzparkett in den Wohnbereichen und Fluren
  • Duschbäder mit großformatigen Wandfliesen, hochwertigen Armaturen und Einbauten sowie flachen Handtuchheizkörpern
  • Waschmaschinen- und Trockneranschluss in jeder Wohnung
  • barrierefreier Zugang mittels Aufzug zu allen Wohnungen
  • Gegensprechanlage
  • begrünter Innenhof
  • 29 PKW-Stellplätze in der Tiefgarage

Energieausweis

Art: Bedarfsausweis
Baujahr: 2019
Endenergiebedarf: 67 kWh/(m²*a)
Baujahr lt. Energieausweis: 2019
Energieausweis: Bedarfsausweis
Wesentlicher Energieträger: Fernwärme
Energieausweis gültig bis: 29.10.2029
Klasse: B
0 50 100 150 200 250 >250

Lage

Eine Insel mitten in der Stadt – das ist der Mierendorffkiez. Um dorthin zu gelangen, müssen zunächst die Spree, der Westhafenkanal oder der Charlottenburger Verbindungskanal überquert werden. Durch diese besondere Lage ist der Kiez bis heute sehr authentisch geblieben. Seinen Namen verdankt er seinem Herzstück, dem weitläufigen Mierendorffplatz gleich um die Ecke des CHARLY NORD. Von Platanen gesäumt, bietet er mit seinen Grünflächen, dem Springbrunnen und einem Spielplatz Erholung vom Trubel sowie an gleich zwei Tagen einen Wochenmarkt.

Auch Supermärkte, Discounter und Bäckereien sind in wenigen Minuten erreicht. Ergänzt werden sie durch traditionellen Einzelhandel – teils seit Jahrzehnten im Kiez etabliert. Neben Kneipen, Imbissen und Restaurants haben sich in den letzten Jahren zudem einige ansprechende neue Cafés angesiedelt. Im näheren Umfeld gibt es mehrere Apotheken sowie ein gutes Angebot an Ärzten und Kliniken. Familien freuen sich über die beiden Kitas, die Mierendorff-Grundschule und das Gottfried-Keller-Gymnasium.

Vom CHARLY NORD aus erreichen Sie bereits nach wenigen Schritten die U-Bahnstation Mierendorffplatz sowie die dortige Bushaltestelle. Auch der S- und U-Bahnhof Jungfernheide mit Anschluss zur Ringbahn ist nur 550 Meter entfernt. Pendler profitieren von der guten Anbindung an den Berliner Hauptbahnhof. Mit Bus und Bahn ist man in etwa 15 Minuten dort.

Sonstiges

ANFRAGEN BITTE ÜBER DAS KONTAKTFORMULAR


BITTE BEACHTEN!
Wir respektieren den Wunsch der Mieter auf Privatsphäre. Bei den Bildern handelt es sich daher um
Bilder einer Musterwohnung im gleichen Objekt. Der Zuschnitt der angebotenen Wohnung
entspricht nicht den Bildern. Die Ausstattung (Böden, Wände, Küche, etc.) ist jedoch in allen
Wohnungen identisch.


Wir weisen vorsorglich darauf hin, dass bei Abschluss des Mietvertrags eine Mindestmietdauer von 12 Monaten sowie eine Indexmiete vereinbart werden.


HAFTUNGSAUSSCHLUSS:
Diese Anzeige dient nur der ersten Information und stellt kein Vertragsangebot dar. Die Anzeige begründet keine vertraglichen Ansprüche. Der Inhalt und die Angaben wurden nach bestem Wissen und Gewissen ermittelt. Für Richtigkeit und Vollständigkeit wird keine Haftung übernommen. Die Grundrisse sind nicht zur Maßentnahme geeignet. Bei den Flächenangaben handelt es sich um Planmaße. Die Wohnung wird nicht möbliert vermietet.

Sofortanfrage zum Objekt

    Mit * gekennzeichnete Felder sind Pflichtangaben. Persönliche Daten werden absolut vertraulich behandelt und nicht unbefugt an Dritte weitergegeben.