Neubau in Rath! Einziehen und wohlfühlen

map-pin Bochumer Straße 31, 40472 Düsseldorf
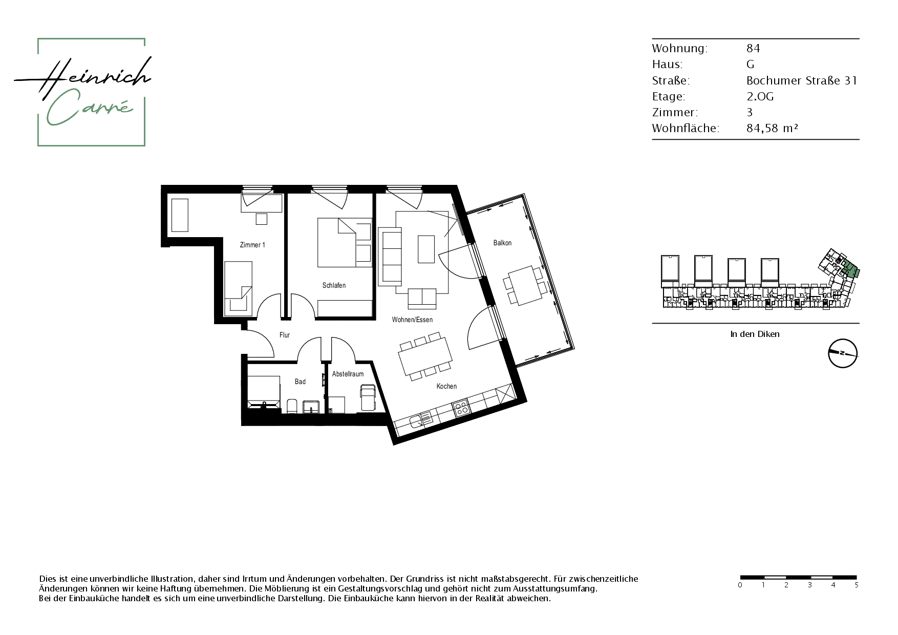
Objekttyp: Etagenwohnung
Etage: 2 von 5
ID: D-HC-84
84,58 m²
3
mit Einbauküche
1
Balkon/Terrasse
Kaltmiete: 1.415 €
Nebenkosten: 300 €
Kaution: 4.245 €
Verfügbar ab: 01.06.2026
1.715 € Warmmiete

Objektbeschreibung & Ausstattung

Die Wohnung ist Teil des Neubauprojekts HEINRICH CARRÉ und liegt im Düsseldorfer Stadtteil Rath. Bei dem Objekt handelt es sich um einen Neubau mit Erstbezug.

Bei 57 bis 109 Quadratmetern finden Sie im HEINRICH CARRÉ eine 3-Zimmer-Wohnung, die zu Ihnen passt! Die inserierte Wohnung verfügt über ein Schlafzimmer, ein weiteres Zimmer und einen Wohn- und Essbereich mit offener Küche, sowie einem Duschbad und einem Abstellraum. Der Balkon lädt zum Verweilen ein.
Insgesamt entstehen im Heinrich Carré 97 Wohnungen und 9 Townhouses, sowie eine Tiefgarage mit 75 PKW-Stellplätzen für die Mieter. Der begrünte Innenhof bietet Sitzflächen und dient als Begegnungsort der Wohnanlage.

Alle Besonderheiten:

  • Eichenechtholzparkett in den Wohnräumen
  • Hochwertige Fliesenböden in Bad und WC
  • Bodengleiche Duschen
  • Fußbodenheizung
  • zusätzlicher Handtuchheizkörper in den Bädern
  • Einbauküche mit Markengeräten
  • Mehr-Scheiben-Isolierverglasung (Dreifachverglasung)
  • Bodentiefe Fenster
  • elektrisch bedienbare Rollläden
  • Balkon, Loggia, Terrasse oder Dachterrasse
  • Aufzug
  • Gegensprechanlage
  • Digitale Haustafel

Energieausweis

Art: Bedarfsausweis
Baujahr: 2024
Endenergiebedarf: 45.8 kWh/(m²*a)
Baujahr lt. Energieausweis: 2024
Energieausweis: Bedarfsausweis
Wesentlicher Energieträger: keine Angabe
Energieausweis gültig bis: 22.10.2034
Klasse: A
0 50 100 150 200 250 >250

Lage

Das Wohnquartier Heinrich Quartier profitiert von der gewachsenen Infrastruktur im Viertel. Ob täglicher Einkauf oder Spielplatzbesuch, Sporttreiben oder Essengehen – alles ist unkompliziert und auf kurzen Wegen möglich. Das Bildungsangebot im Stadtteil reicht von drei Grundschulen bis zu zwei weiterführenden Schulen.

Am nahe gelegenen Bahnhof Düsseldorf-Rath hält die S-Bahn-Linie 6 (Köln-Essen). Von hier aus ist der Düsseldorfer Hauptbahnhof in nur 12 Minuten zu erreichen. Neben der Straßenbahnlinie 701, den Buslinien 730 und 776, bietet auch die Stadtbahnlinie U 72, die in unmittelbarer Nähe des Objekts hält, bequeme Mobilität innerhalb des Stadtteils und darüber hinaus.

Die Nähe zum Aaper Wald, der nicht nur puren Naturgenuss, sondern auch eine Vielzahl an Sportanlagen wie bspw. das Rather Waldstadion oder die 7-Hügel MTB BMX bietet, begeistert nicht nur Familien. Ebenso begeisternd ist die Nähe zur Düsseldorfer Innenstadt, wo man neben Shopping und Sightseeing auch das bunte Kultur- und Nachtleben genießen kann.

Sonstiges

Wir bitten Sie Terminanfragen über das Kontaktformular zu senden.

Bei den Bildern handelt es sich um Bilder einer vergleichbaren Wohnung.

Wir weisen vorsorglich darauf hin, dass Leistungen des Jobcenters oder ein Wohnberechtigungsschein nicht berücksichtigt werden können.

Im Falle einer Anmietung wird mietvertraglich ein Kündigungsverzicht von 12 Monaten vereinbart.

HAFTUNGSAUSSCHLUSS:
Diese Anzeige dient nur der ersten Information und stellt kein Vertragsangebot dar. Die Anzeige begründet keine vertraglichen Ansprüche. Der Inhalt und die Angaben wurden nach bestem Wissen und Gewissen ermittelt. Für Richtigkeit und Vollständigkeit wird keine Haftung übernommen.


Sofortanfrage zum Objekt

    Mit * gekennzeichnete Felder sind Pflichtangaben. Persönliche Daten werden absolut vertraulich behandelt und nicht unbefugt an Dritte weitergegeben.