Moderne 3 Zimmer Wohnung mit Terrasse im Grünen!

map-pin Steinkleeweg 3, 13158 Berlin
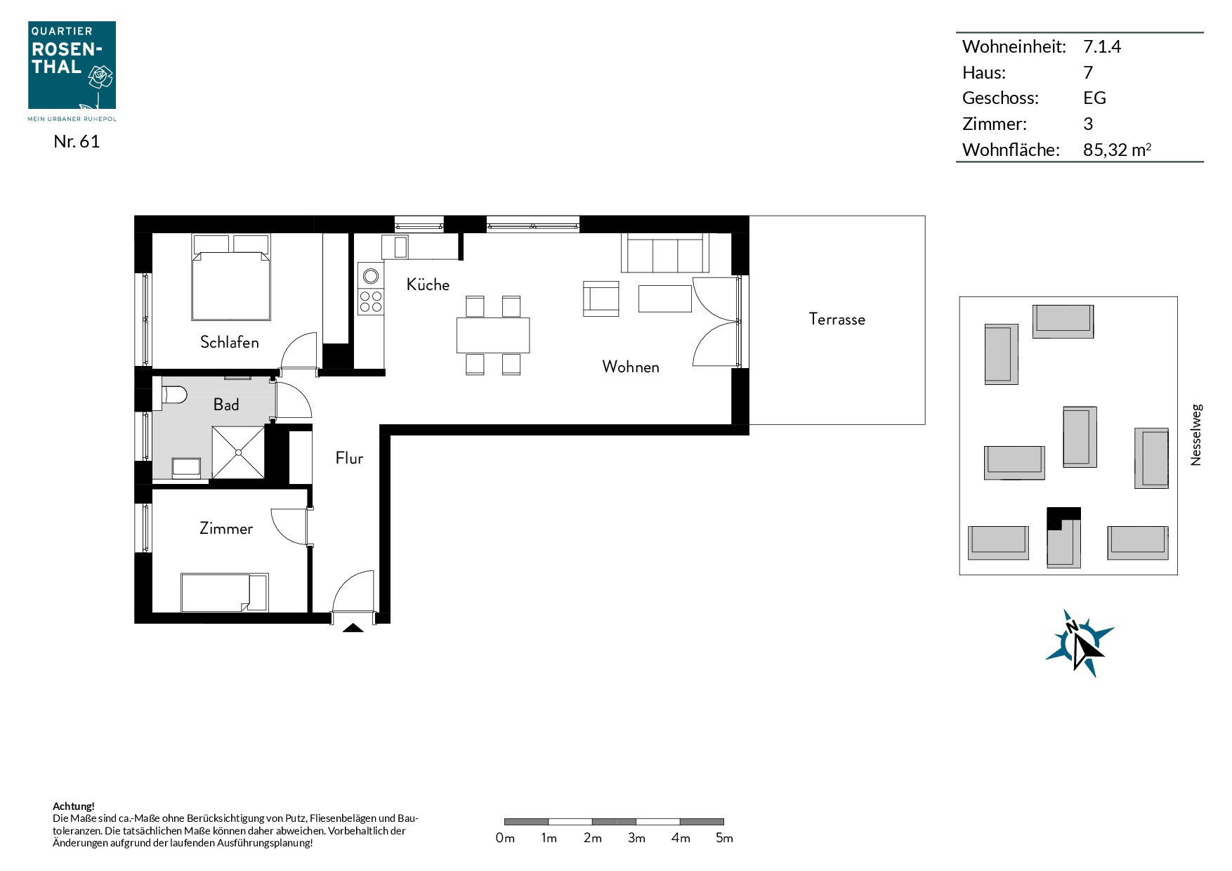
Objekttyp: Erdgeschosswohnung
ID: B-QR-61-3
86,68 m²
3
mit Einbauküche
1
Kaltmiete: 1.360 €
Nebenkosten: 340 €
Kaution: 4.080 €
Verfügbar ab: 01.02.2026
1.700 € Warmmiete

Objektbeschreibung & Ausstattung

Die exklusive 3-Zimmer-Wohnung im QUARTIER ROSENTHAL bietet auf ca. 87 Quadratmetern alles, was Paare oder kleine Familien zum modernen Wohnen brauchen. Sie betreten die Wohnung über einen geräumigen Flur. Vom Flur aus erreichen Sie alle Zimmer, sowie das Badezimmer.
Das helle, geräumige Wohn- und Esszimmer bietet Zugang zur Terrasse und verfügt über eine gehobene und offene Einbauküche. Die Wohnung bietet ein großzügiges Duschbad inklusive Waschmaschinenanschluss. Die beiden Schlafzimmer erreicht man über den Flur. Ein Keller gehört ebenfalls mit zur Wohnung.

Alle Besonderheiten:

  • Einbauküche mit Markengeräten
  • Fußbodenheizung in der ganzen Wohnung
  • Balkon, Terrasse oder Dachterrasse
  • bodentiefe Fenster
  • elektrische Außenrollläden im Erdgeschoss, Plissés in den Obergeschossen
  • Eichenechtholzparkett in den Wohnbereichen und Fluren
  • Badezimmer mit großformatigen Wandfliesen, hochwertigen Armaturen und Einbauten sowie flachen Handtuchheizkörpern
  • Waschmaschinenanschluss in jeder Wohnung
  • Gegensprechanlage

Energieausweis

Art: Bedarfsausweis
Baujahr: 2020
Endenergiebedarf: 51 kWh/(m²*a)
Baujahr lt. Energieausweis: 2019
Energieausweis: Bedarfsausweis
Wesentlicher Energieträger: Fernwärme
Energieausweis gültig bis: 14.07.2029
Klasse: B
0 50 100 150 200 250 >250

Lage

BERLIN-PANKOW: Grün, vielseitig und ausgesprochen beliebt!

- zweitgrößter und bevölkerungsreichster Bezirk Berlins und reicht von Berliner City-Ost bis an die Landesgrenze zum grünen Barnim
- umfasst den südlich gelegenen Prenzlauer Berg mit seinen Gründerzeitvierteln, kleinen Geschäften und vielen Cafés ebenso wie den namensgebenden Ortsteil Pankow oder die vorstädtisch bis ländlich geprägten Ortsteile Karow und Buch im Nordosten.

- idyllische Grünanlagen, attraktive Wohnquartiere, angesagte Szenekieze, hochkarätige Kulturlocations, erfolgreiche Gewerbestandorte
- Schloss Schönhausen, der Wasserturm in der Knaackstraße oder Weißensee mit seinem Strandbad und dem größten jüdischen Friedhof Europas
- stadtbekannte Ökomarkt am Kollwitzplatz sowie der Markt auf dem Pankower Anger lohnen immer einen Besuch

PANKOW-ROSENTHAL: Dörfliche Beschaulichkeit im Norden Berlins

- ruhig und grün gelegen, aber bestens an die Innenstadt angebunden
- im 13. Jahrhundert als Angerdorf angelegt: Hauptstraße mit dem denkmalgeschützten Ensemble aus Dorfkirche, Gemeindehaus und Gutshof sind heute noch vorhanden
- Gartenstadtcharakter, Ein- und Zweifamilienhaussiedlungen, Laubenkolonien
- bei Familien beliebt

AREAL & ANBINDUNG: Mit der Tram direkt in die Innenstadt

- Bushaltestelle Kräuterweg mit Anbindung nach Buchholz wenige Schritte vom QUARTIER ROSENTHAL
- nächste Tramhaltestelle ist ebenfalls nicht weit: mit der M1 auf direktem Wege in die Stadtmitte
- vom S-Bahnhof Wilhelmsruh verkehren die wichtigen Pendlerlinien S 85 und S 1
- mit dem Auto in ca. 20 Minuten auf der A10 oder A114

- Nahversorgung: Supermarkt, verschiedene Discounter, Getränkemarkt und mehrere Bäckereien sind fußläufig erreichbar
- weitere Einkaufsmöglichkeiten, Apotheken und Ärzte im angrenzenden Märkischen Viertel und Wilhelmsruh
- Kita, Kindergarten und zwei Grundschulen im Umkreis von zwei Kilometern

Sonstiges

ANFRAGEN BITTE ÜBER DAS KONTAKTFORMULAR.


BITTE BEACHTEN!
Wir respektieren den Wunsch der Mieter auf Privatsphäre. Bei den Bildern handelt es sich daher um
Bilder einer Musterwohnung im gleichen Objekt. Der Zuschnitt der angebotenen Wohnung
entspricht nicht den Bildern. Die Ausstattung (Böden, Wände, Küche, etc.) ist jedoch in allen
Wohnungen identisch.


Wir weisen vorsorglich darauf hin, dass bei Abschluss des Mietvertrags eine Mindestmietdauer von 12 Monaten sowie eine Indexmiete vereinbart werden.



HAFTUNGSAUSSCHLUSS:

Diese Anzeige dient nur der ersten Information und stellt kein Vertragsangebot dar. Die Anzeige begründet keine vertraglichen Ansprüche. Der Inhalt und die Angaben wurden nach bestem Wissen und Gewissen ermittelt. Für Richtigkeit und Vollständigkeit wird keine Haftung übernommen. Die Grundrisse sind nicht zur Maßentnahme geeignet.



Sofortanfrage zum Objekt

    Mit * gekennzeichnete Felder sind Pflichtangaben. Persönliche Daten werden absolut vertraulich behandelt und nicht unbefugt an Dritte weitergegeben.