Moderne 2-Zimmer-Wohnung im Verlegerviertel

map-pin Holzhofallee 31, 64295 Darmstadt
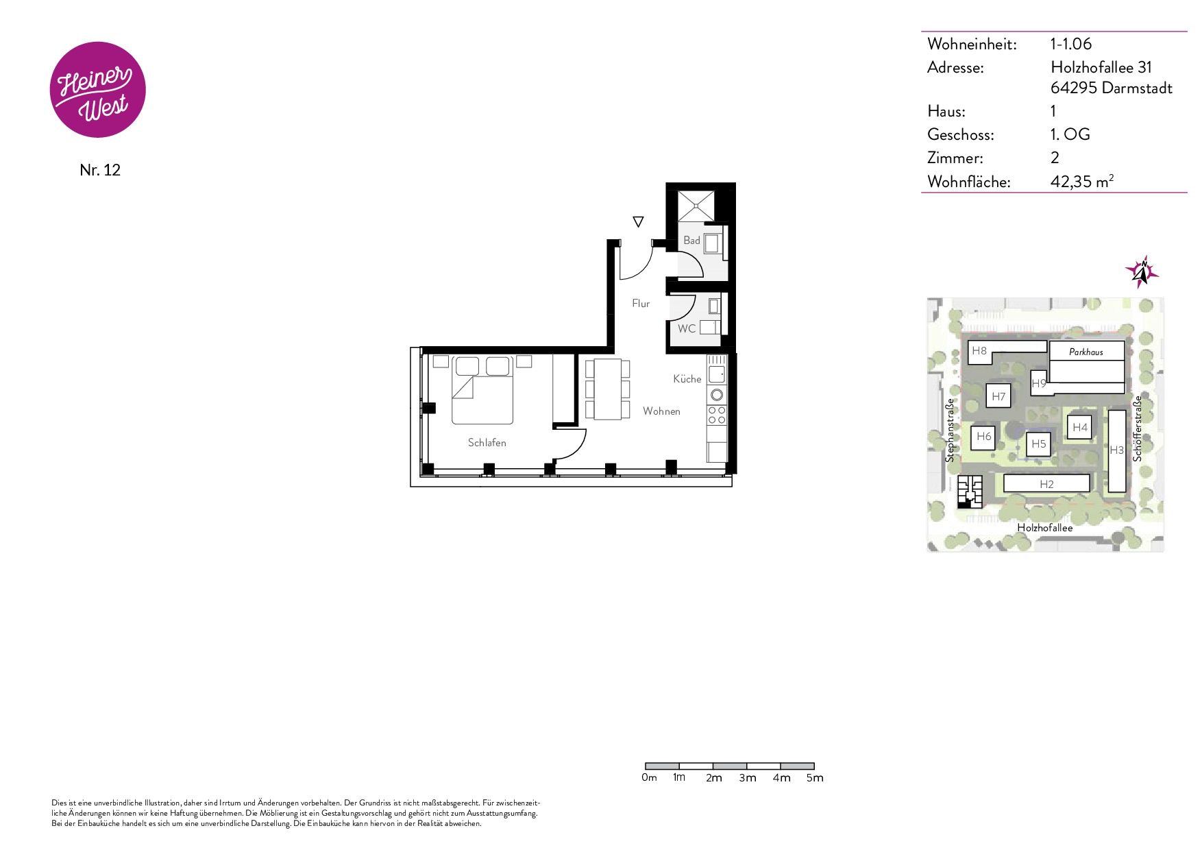
Objekttyp: Etagenwohnung
Etage: 1 von 7
ID: DA-VH-1-1.06
42,35 m²
2
mit Einbauküche
1
Kaltmiete: 860 €
Nebenkosten: 130 €
Kaution: 2.580 €
Verfügbar ab: 01.05.2026
990 € Warmmiete

Objektbeschreibung & Ausstattung

Die hier angebotene Wohnung betrittst du über einen kleinen Flur von dem aus das Duschbad und das separate WC zugänglich sind. Weiterhin öffnet sich Flur zum Wohn- und Esszimmer hin, das bereits mit einer Küchenzeile ausgestattet ist. Weiter geht es von hier in das geräumige, separate Schlafzimmer.



Die großzügigen Spiel- und Grünflächen der angrenzenden VERLEGERHÖFE kannst du als Mieter*in gerne mitnutzen. Einen eigenen Abstellraum sowie Fahrradstellplätze findest du im Keller. Für dein Auto stehen Mietstellplätze im Parkhaus bereit.

Alle Besonderheiten:

  • Designböden (moderne Kunstharzböden)
  • Fußbodenheizung in allen Räumen
  • Einbauküche mit Geräten
  • Hochwertige Badausstattung
  • Großformatige Fliesen
  • Großzügige Fensterflächen
  • Manuelle Außenrollläden
  • Im Erdgeschoss teils mit Terrasse

Energieausweis

Art: Bedarfsausweis
Baujahr: 2020
Endenergiebedarf: 32.4 kWh/(m²*a)
Baujahr lt. Energieausweis: 1968
Energieausweis: Bedarfsausweis
Wesentlicher Energieträger: Erdgas schwer
Energieausweis gültig bis: 22.11.2020
Klasse: A
0 50 100 150 200 250 >250

Lage

Das Verlegerviertel liegt südlich vom Hauptbahnhof und östlich der Stadtmitte – einst Heimstätte der Verlags- und Druckereibranche.

Hier, auf dem ehemaligen Areal des Darmstädter Echo, liegen die VERLEGERHÖFE. Diverse Parks und Grünflächen wie die Albert-Schweitzer-Anlage, der Akazien- oder Prinz-Emil-Garten liegen ebenfalls in Fußnähe. Und auch in der Innenstadt mit ihren vielen Geschäften, Restaurants und Cafés sowie am grünen Stadtrand sind Sie von hier im Nu.

Sonstiges

Wir bitten Sie Terminanfragen über das Kontaktformular zu senden, Sie erhalten dann automatisch eine Termineinladung.

Bei den Bildern handelt es sich um Fotos einer Musterwohnung im Objekt. Die Ausstattung und der Schnitt können abweichen. Gerne können Sie sich im Zuge einer Besichtigung von den Verlegerhöfen selbst überzeugen.


HAFTUNGSAUSSCHLUSS:
Diese Anzeige dient nur der ersten Information und stellt kein Vertragsangebot dar. Die Anzeige begründet keine vertraglichen Ansprüche. Der Inhalt und die Angaben wurden nach bestem Wissen und Gewissen ermittelt. Für Richtigkeit und Vollständigkeit wird keine Haftung übernommen. Die Grundrisse sind nicht zur Maßentnahme geeignet. Bei den Flächenangaben handelt es sich um Planmaße. Bei den Bildern handelt es sich um unverbindliche Visualisierungen und Bilder der Musterwohnung. Gerne können Sie sich im Zuge einer Besichtigung der Musterwohnung selbst von den Verlegerhöfen überzeugen.

Sofortanfrage zum Objekt

    Mit * gekennzeichnete Felder sind Pflichtangaben. Persönliche Daten werden absolut vertraulich behandelt und nicht unbefugt an Dritte weitergegeben.