Ihr neues Zuhause in zentraler Lage

map-pin Rheinallee 11c, 67061 Ludwigshafen am Rhein
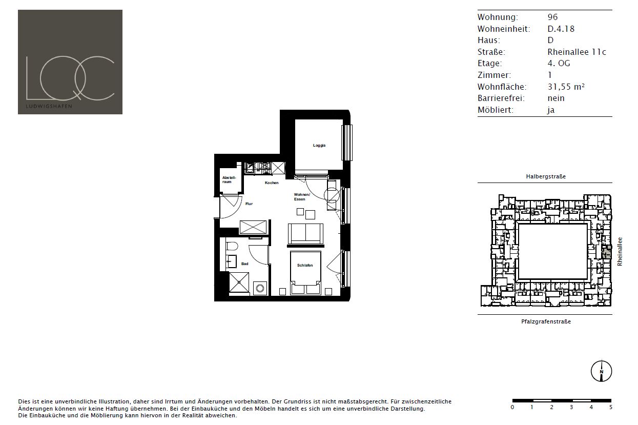
Objekttyp: Etagenwohnung
Etage: 4 von 5
ID: lu-lqc-96
31,55 m²
1
mit Einbauküche
1
Balkon/Terrasse
Kaltmiete: 680 €
Nebenkosten: 160 €
Kaution: 2.040 €
Verfügbar ab: 01.04.2026
840 € Warmmiete

Objektbeschreibung & Ausstattung

Die Wohnung ist Teil des Projekts LQC und liegt zentral gelegen in Ludwigshafen nahe am Ufer des Rheins. Das Wohngebäude umfasst 195 Wohnungen in verschiedenen Größen. Zur Vermietung stehen kompakte 1-Zimmer Wohnungen, aber auch größere 2- bis 5-Zimmer Wohnungen. Nahezu alle Einheiten verfügen über eine Terrasse, einen Balkon oder eine Loggia. Die für die meisten Wohnungen vorhandenen Mieterkeller, Technikräume und die Tiefgarage befinden sich im Untergeschoss des Gebäudes. Bitte beachten Sie, dass die maximale Einfahrtshöhe zu den Stellplatzsystemen 1,75m beträgt.

Als Mieter im LQC haben Sie zudem die Möglichkeit, günstigen Strom über das Mieterstrom-Modell zu beziehen.

Alle Besonderheiten:

  • Designvinylboden in Holzoptik in den Wohnräumen
  • Hochwertiger Fliesenboden in Bädern und WCs
  • Wärmegedämmte Fenster mit Schallschutzverglasung
  • Elektrisch betriebene Rollläden
  • Fußbodenheizung
  • Handtuchheizkörper in Bädern und Duschbädern
  • Einbauküchen mit Marken-Geräten
  • Multimedia-Anschluss an Breitbandkabelnetz
  • Video-Gegensprechanlage
  • Terrasse, Balkon oder Loggia in den meisten Wohnungen

Energieausweis

Art: Bedarfsausweis
Baujahr: 2024
Endenergiebedarf: 52 kWh/(m²*a)
Baujahr lt. Energieausweis: 2024
Energieausweis: Bedarfsausweis
Wesentlicher Energieträger: Fernwärme
Energieausweis gültig bis: 09.02.2035
Klasse: B
0 50 100 150 200 250 >250

Lage

Mit bester Verkehrsanbindung, Flussnähe und Fußgängerzonen überzeugt der Stadtteil Mitte, der zur südlichen Innenstadt Ludwigshafens gehört. Hier überrascht eine lebendige City, die ohne mondänen Chic auskommt, aber mit exklusiven Wohnlagen am Wasser punktet. Kulturelle Freizeitgestaltung „um die Ecke“ ist nicht nur im Cineplex-Kino Mannheim möglich, sondern auch im Wilhelm-Hack-Museum für moderne Kunst, dem Theater im Pfalzbau oder der Rheinländisch-Pfälzischen Philharmonie. Mit einer Grundschule, einem Gymnasium und sechs Kindertagesstätten bietet der Stadtteil Mitte auch für Familien mit Kindern beste Bedingungen. Shopping-Angebote und einladende Gelegenheiten zum Außer-Haus-Essen finden sich in den Fußgängerzonen Kaiser-Wilhelm-Straße und Ludwigstraße, aber auch in der Rhein-Galerie.

Über die wichtigste Verkehrsader des Stadtteils, der Hochstraße in Mitte, erreicht man in kürzester Zeit alle Autobahnen der Region, aber auch die Pfälzer Weinstraße. Wer den ÖPNV nutzt, kommt von der Haltestelle Berliner Platz mit Bahn- und Buslinien in alle Stadtteile Ludwigshafens, aber auch nach Mannheim und die Region. Außerdem besteht über den S-Bahnhof Mitte eine Verbindung nach Mannheim, Heidelberg, Karlsruhe, Mainz und Kaiserlautern.

Sonstiges

Wir bitten Sie Terminanfragen über das Kontaktformular zu senden.

Link zur Projektwebseite: https://lqc-ludwigshafen.de/


Bei den Bildern handelt es sich um unverbindliche Visualisierungen und Bilder einer Musterwohnung. Gerne können Sie sich im Zuge einer Besichtigung der Wohnung selbst vom LQC überzeugen.

HAFTUNGSAUSSCHLUSS:
Diese Anzeige dient nur der ersten Information und stellt kein Vertragsangebot dar. Die Anzeige begründet keine vertraglichen Ansprüche. Der Inhalt und die Angaben wurden nach bestem Wissen und Gewissen ermittelt. Für Richtigkeit und Vollständigkeit wird keine Haftung übernommen.


Sofortanfrage zum Objekt

    Mit * gekennzeichnete Felder sind Pflichtangaben. Persönliche Daten werden absolut vertraulich behandelt und nicht unbefugt an Dritte weitergegeben.