HafenCity Hamburg: Charmante 2-Zimmer-Wohnung mit Einbauküche und Balkon

map-pin Am Sandtorpark 3, 20457 Hamburg
Objekttyp: Etagenwohnung
Etage: 2 von 6
ID: KPTN-H4.02.02
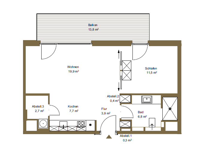
58,30 m²
2
mit Einbauküche
1
Balkon/Terrasse
Kaltmiete: 1.660 €
Nebenkosten: 265 €
Kaution: 4.980 €
Verfügbar ab: 01.01.26
1.925 € Warmmiete

Objektbeschreibung & Ausstattung

Das Neubauensemble KPTN bietet anspruchsvollen Wohnraum im zukünftigen Lebensmittelpunkt der Metropole Hamburg. Das Quartier besteht aus insgesamt fünf Gebäuden, die eine Gesamtfläche von rund 33.000 Quadratmetern bieten. Zwischen den Gebäudekomplexen liegt eine öffentliche Piazza als Passage zwischen der Straße „Am Sandtorpark“ und der „Singapurstraße“.

Die hochwertigen Mietwohnungen mit variierendem Raumangebot bieten Wohnraum für jeden Bedarf und jeden Anspruch. Die Palette unterschiedlicher Grundrisse, das Spektrum der Wohnungsgrößen zwischen 45 und 120 Quadratmetern und Außenflächen wie Dachterrassen oder Balkone in ausgesuchten Einheiten gewähren eine Vielzahl an Auswahlmöglichkeiten – Hanseatische Freiheit in ihrer schönsten Form.

Alle Besonderheiten:

  • Bodentiefe Panoramafenster
  • Edle Holzdielen
  • Exklusive Einbauküche von Hummel mit marmorierter Arbeitsplatte, Markengeräten und Bronze-Armaturen
  • Hochwertige, maßangefertigte Tischlereinbauten
  • Bronzefarbene Designer-Bad- und Küchenarmaturen von Hans Grohe
  • Hochwertige Keramik- und Steingutfliesen mit dezenter Marmoroptik in den Bädern
  • Ebenerdige Dusche mit Echtglasspritzschutz
  • Vorinstallierte LED-Deckenspots in den Bädern und im Flurbereich
  • Balkon oder Terrasse
  • Videogegensprechanlage
  • Kellerraum

Energieausweis

Art: Bedarfsausweis
Baujahr: 2019
Endenergiebedarf: 67 kWh/(m²*a)
Baujahr lt. Energieausweis: 2019
Energieausweis: Bedarfsausweis
Wesentlicher Energieträger: Fernwärme
Energieausweis gültig bis: 10.02.2031
Klasse: B
0 50 100 150 200 250 >250

Lage

Willkommen im Überseequartier der HafenCity!

Die HafenCity avanciert zu Hamburgs neuem Lebensmittelpunkt. Entsprechend gut ist das KPTN im Zentrum dieses Stadtteils an die Hotspots Hamburgs angebunden: Rathaus, Kiez, Neuer Wall, Alster und Elbe sind nicht weit entfernt, ebenso wie Einkaufsmöglichkeiten und Gastronomien, die sogar im Haus vorhanden sind. Durch Straßen und Öffentlichen Nahverkehr ist alles nah, was Hamburg ausmacht.


Sofortanfrage zum Objekt

    Mit * gekennzeichnete Felder sind Pflichtangaben. Persönliche Daten werden absolut vertraulich behandelt und nicht unbefugt an Dritte weitergegeben.