Moderne 3- Zimmer Erdgeschoss Wohnung mit EBK und Keller

map-pin Tramplerstraße 87/2, 77933 Lahr
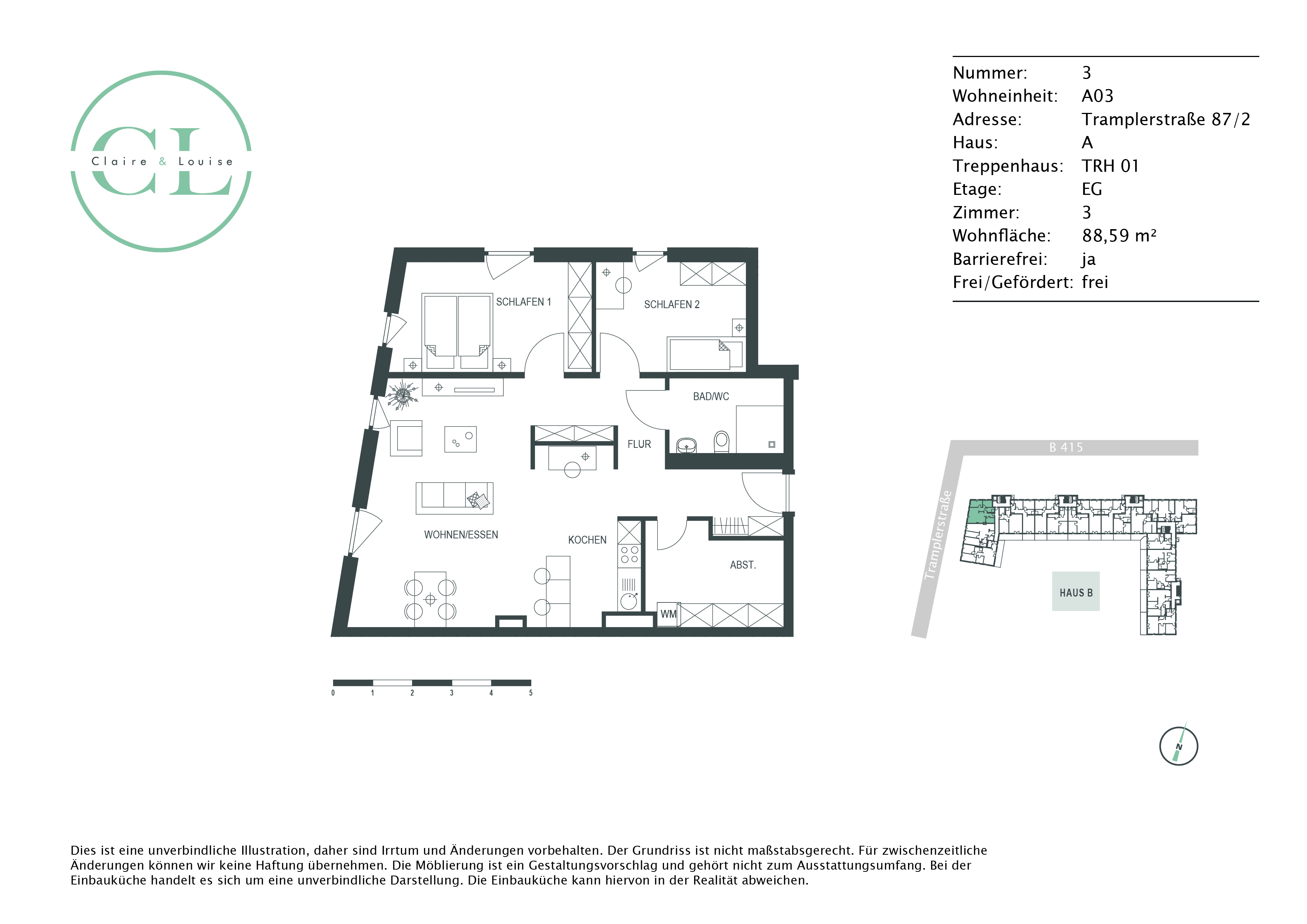
Objekttyp: Erdgeschosswohnung
ID: LR-CL-A03
88,59 m²
3
mit Einbauküche
1
Kaltmiete: 1.055 €
Nebenkosten: 340 €
Kaution: 3165 €
Verfügbar ab: 16.05.2026
1.395 € Warmmiete

Objektbeschreibung & Ausstattung

Eine exklusiv geschnittene 3-Zimmer-Wohnung auf einer Fläche von 88 Quadratmeter präsentiert sich mit zwei Schlafzimmern, einem Duschbad, einem Flur mit kleiner Abstellnische und einem großzügigen Koch-, Ess- und Wohnbereich. Ein zusätzlicher Abstellraum bietet platz für den Waschmaschinen-Anschluss.

Alle Besonderheiten:

Alle Besonderheiten des Claire & Louise auf einen Blick:

• 114 Mietwohnungen mit 1 bis 4 Zimmern
• Gegensprechanlagen mit Videofunktion und Aufzüge
• mehr als 80% der Wohnungen mit Balkon oder (Dach)Terrasse
• Bodentiefe Fenster- und Fenstertüren
• Glattweiße oder weiß tapezierte Wände
• Fußbodenheizung in der ganzen Wohnung
• Modern ausgestattete Badezimmer mit bodentiefen Duschen
• Echtholzparkett in Fluren und Wohnbereichen
• Einbauküche inkl. Elektrogeräten
• 120 PKW-Stellplätze in der Tiefgarage und 23 Außenstellplätze
• Freundlich gestaltete Grün- und Spielanlagen

Weitere Informationen und Grundrisse finden Sie auf unserer Homepage unter www.mueller-merkle.de .

Energieausweis

Art: Bedarfsausweis
Baujahr: 2021
Endenergiebedarf: 31 kWh/(m²*a)
Baujahr lt. Energieausweis: 2021
Energieausweis: Bedarfsausweis
Wesentlicher Energieträger: Fernwärme
Energieausweis gültig bis: 11.05.2031
Klasse: A
0 50 100 150 200 250 >250

Lage

Das Gebäudeensemble in der Tramplerstraße 87/1 – 87/6 befindet sich südwestlich der Innenstadt Lahrs – in gewachsener Lage, umgeben von begrünten Straßen, Ein- und Mehrfamilienhäusern sowie allen wichtigen Einrichtungen des täglichen Bedarfs. Die Anbindung an die Region ist mit den nahegelegenen Bundesstraßen B 414 und B 3 bestens ausgebaut. Innerhalb kürzester Zeit ist nicht nur ein schneller Anschluss an die Autobahn A 5 gegeben, sondern auch an den Flughafen Lahr oder den Europapark. Auch Offenburg und Freiburg erreicht man nach ca. 27 km bzw. ca. 50 km Fahrstrecke.

Ob Einkaufen, Arztbesuche, Freizeitbeschäftigung oder Kinderbetreuung – das tägliche Leben lässt sich leicht zu Fuß, mit dem Rad, dem Auto oder dem Bus bewältigen, der in der Nähe des Objekts hält und die innerstädtische Verbindung sichert. REWE, OBI, dm-Drogeriemarkt, Fressnapf, ATU, Mediamarkt und Penny decken die unmittelbare Versorgung ebenso ab wie das unweit entfernte Einkaufszentrum ARENA. Zwei Sekundarschulen, eine Grundschule und ein Kindergarten sind genauso schnell erreichbar wie eine Sportanlage, ein Hallenbad und der Gemeindepark mit Spiel- und Sportplatz.

Überzeugend ist auch die Nähe zur Natur – schon nach kurzer Entfernung erschließen Feldwege südlich des Objekts die malerische Umgebung.

Sonstiges

Wir bitten Sie Terminanfragen über das Kontaktformular zu senden.

HAFTUNGSAUSSCHLUSS:
Diese Anzeige dient nur der ersten Information und stellt kein Vertragsangebot dar. Die Anzeige begründet keine vertraglichen Ansprüche. Der Inhalt und die Angaben wurden nach bestem Wissen und Gewissen ermittelt. Für Richtigkeit und Vollständigkeit wird keine Haftung übernommen.

Sofortanfrage zum Objekt

    Mit * gekennzeichnete Felder sind Pflichtangaben. Persönliche Daten werden absolut vertraulich behandelt und nicht unbefugt an Dritte weitergegeben.