Smart Living in Dahlem – Neubau, Erstbezug, voll möbliert, 1A-Lage

map-pin Königin-Luise-Straße 15, 14195 Berlin
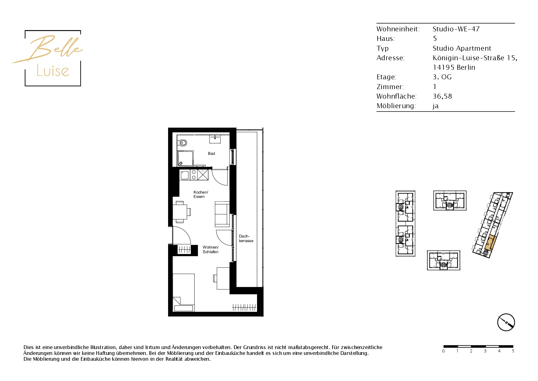
Objekttyp: Apartment
Etage: 3 von 4
ID: b-bl-studio-47
36,58 m²
1
mit Einbauküche
1
Kaltmiete: 1.110 €
Nebenkosten: 130 €
Kaution: 3.330 €
Verfügbar ab: ab sofort
1.240 € Warmmiete

Objektbeschreibung & Ausstattung

Dieses 1-Zimmer-Apartment beeindruckt mit einem offenen Wohnraum, der durch eine besonders großzügige Schlafnische viel Platz und Komfort bietet – ideal, um Wohnen und Schlafen geschickt zu verbinden.

Die moderne Einbauküche ist stilvoll im Wohnbereich integriert und schafft eine offene, einladende Atmosphäre. Das Badezimmer überzeugt mit einer bodengleichen Dusche und zeitgemäßem Design.

Das absolute Highlight der Wohnung ist die großzügige Dachterrasse, die sich fast über die gesamte Wohnfläche erstreckt und viel Raum für entspannte Stunden im Freien bietet.

Das Apartment ist voll möbliert und ausgestattet unter anderem mit einem komfortablen Bett, einem Schreibtisch, einem Kleiderschrank sowie einem Esstisch mit Stühlen – alles, was du für einen sofortigen Einzug brauchst.

Alle Besonderheiten:

  • Vinyl-Design-Boden in den Wohnräumen
  • Großformatige Feinsteinzeug-Fliesen in den Bädern und im Küchenbereich
  • Fußbodenheizung in allen Wohnbereichen und Bädern
  • Zusätzlicher Handtuchheizkörper in den Bädern
  • Vollausgestattete Einbauküchen in allen Wohnungen
  • Pantryküche in den möblierten Studioapartments
  • Balkon / Terrasse / Dachterrasse
  • 3-fach-Verglasung der Fenster
  • Elektrisch bedienbare Rollläden an allen Fenstern
  • Video-Gegensprechanlage
  • Glasfaseranschluss für schnelles Internet
  • Aufzug
  • Mieterkeller
  • Fernwärme

Energieausweis

Art: Bedarfsausweis
Baujahr: 2025
Endenergiebedarf: 47.9 kWh/(m²*a)
Baujahr lt. Energieausweis: 2025
Energieausweis: Bedarfsausweis
Wesentlicher Energieträger: Fernwärme
Energieausweis gültig bis: 02.05.2035
Klasse: A
0 50 100 150 200 250 >250

Lage

Urban leben, grün genießen – im BELLE LUISE, mitten im historischen Dahlem.
Hier treffen Ruhe, Kultur und Großstadtkomfort aufeinander. Alles für den täglichen Bedarf ist bequem zu Fuß erreichbar: zwei REWE-Märkte, Bäckereien, Cafés, Restaurants, Apotheken, Blumenladen und mehr.

Perfekt für Studierende, Familien und Berufstätige:
Kurze Wege zu Uni, Kitas, Schulen und Bibliotheken, dazu viel Grün und Freizeitangebote wie der Botanische Garten, Spielplätze und die Domäne Dahlem mit Hofladen und Eventprogramm.

Schnell mobil: U3, diverse Buslinien, schnelle Anbindung an die B1 und A100 – ob City, Büro oder Ausflug ins Grüne: alles liegt in Reichweite.

Sonstiges

Wir bitten Sie Terminanfragen über das Kontaktformular zu senden.

Bei den Bildern handelt es sich um Aufnahmen der Musterwohnung. Gerne können Sie sich im Zuge einer Besichtigung der Musterwohnung selbst vom BELLE LUISE überzeugen.

Wir weisen vorsorglich darauf hin, dass im Falle einer Anmietung mietvertraglich ein Kündigungsverzicht von 12 Monaten vereinbart wird.

Alle Infos zum Projekt unter http://www.belle-luise.de/

HAFTUNGSAUSSCHLUSS:
Diese Anzeige dient nur der ersten Information und stellt kein Vertragsangebot dar. Die Anzeige begründet keine vertraglichen Ansprüche. Der Inhalt und die Angaben wurden nach bestem Wissen und Gewissen ermittelt. Für Richtigkeit und Vollständigkeit wird keine Haftung übernommen.


Sofortanfrage zum Objekt

    Mit * gekennzeichnete Felder sind Pflichtangaben. Persönliche Daten werden absolut vertraulich behandelt und nicht unbefugt an Dritte weitergegeben.