Möbelierte 1-Zimmer-Wohnung im Top Lage!

map-pin Lyoner Straße 50, 60528 Frankfurt am Main
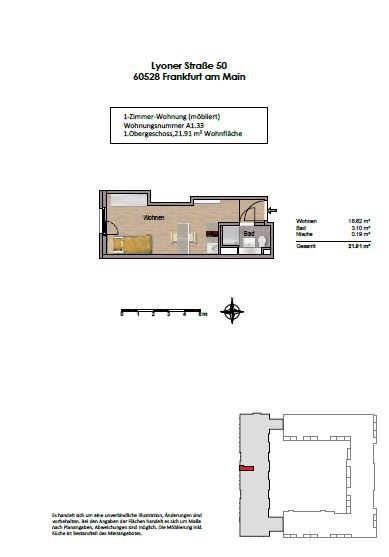
Objekttyp: Etagenwohnung
Etage: 1 von 7
ID: FFM_MAIN_STUDIOS-A1.33
21,91 m²
1
mit Einbauküche
1
Kaltmiete: 690 €
Nebenkosten: 185 €
Kaution: 2.070 €
Verfügbar ab: ab sofort
875 € Warmmiete

Objektbeschreibung & Ausstattung

Das Mainwald befindet sich im Stadtteil Niederrad in Frankfurt am Main. Das Objekt bietet voll möblierte Studios und auch Suiten mit funktionalen Grundrissen.
Der helle Wohn- und Schlafbereich überzeugt durch eine effiziente Raumaufteilung und bietet Platz zum Wohnen, Arbeiten und Entspannen. Große Fensterflächen sorgen für eine freundliche, lichtdurchflutete Atmosphäre.
Die integrierte Kitchenette ist funktional ausgestattet und harmonisch in den Wohnraum eingebunden. Das moderne Bad ergänzt die hochwertige Ausstattung. WLAN- und TV-Anschluss sind vorhanden, die Einheit ist bezugsfertig.
Ergänzt wird das Wohnkonzept durch attraktive Gemeinschaftsflächen wie der Servicedesk, einen Loungebereich und einen Fitnessraum. Waschmöglichkeiten auf den Etagen sowie Stellplätze in der Tiefgarage erhöhen den Wohnkomfort.

Alle Besonderheiten:

  • Highlights:
  • Suites und möblierte Studios
  • Studios: Hauswirtschaftsraum mir Waschmaschinen auf jeder Etage
  • Servicedesk mit persönlichem Ansprechpartner vor Ort
  • Einbauküche mit Elektrogeräten
  • teilweise Balkon oder Terrasse
  • Lichtdurchflutete Räume dank bodentiefer Fenster
  • Stellplätze in der Tiefgarage
  • TV-Anschluss in jedem Apartment
  • WLAN im ganzen Haus und Gästezugang in der Lobby

Energieausweis

Art: Bedarfsausweis
Baujahr: 2021
Endenergiebedarf: 54.5 kWh/(m²*a)
Baujahr lt. Energieausweis: 2021
Energieausweis: Bedarfsausweis
Wesentlicher Energieträger: Fernwärme
Energieausweis gültig bis: 09.01.2031
Klasse: B
0 50 100 150 200 250 >250

Lage

Die Mainwald Studios and Suites befinden sich im Lyoner Quartier im Stadtteil Niederrad in Frankfurt am Main. Die Lage zeichnet sich durch eine hervorragende Anbindung zwischen Innenstadt und Flughafen aus und verbindet urbanes Umfeld mit naturnaher Umgebung.
Geschäfte des täglichen Bedarfs, Gastronomie sowie verschiedene Dienstleistungsangebote sind fußläufig erreichbar. Gleichzeitig sorgen nahegelegene Haltestellen des öffentlichen Nahverkehrs für eine schnelle Verbindung in die Innenstadt, zum Hauptbahnhof und zum Flughafen.
Darüber hinaus bietet die unmittelbare Nähe zum Frankfurter Stadtwald einen hohen Freizeit- und Erholungswert. Insgesamt vereint der Standort eine zentrale, gut vernetzte Lage mit einer angenehmen, grünen Umgebung und bietet damit eine attraktive Wohnqualität.

Sonstiges

Wir bitten Sie Terminanfragen über das Kontaktformular zu senden. Link zur Projektwebseite: https://www.mueller-merkle.de/projekte/mainwald/

Bei den Bildern handelt es sich um unverbindliche Visualisierungen und Bilder einer Musterwohnung. Gerne können Sie sich im Zuge einer Besichtigung der Wohnung selbst vom Mainwald überzeugen.

HAFTUNGSAUSSCHLUSS:
Diese Anzeige dient nur der ersten Information und stellt kein Vertragsangebot dar. Die Anzeige begründet keine vertraglichen Ansprüche. Der Inhalt und die Angaben wurden nach bestem Wissen und Gewissen ermittelt. Für Richtigkeit und Vollständigkeit wird keine Haftung übernommen.


Sofortanfrage zum Objekt

    Mit * gekennzeichnete Felder sind Pflichtangaben. Persönliche Daten werden absolut vertraulich behandelt und nicht unbefugt an Dritte weitergegeben.