Platz für die ganze Familie: 4-Zimmer-Wohnung im Ben & Debbie

map-pin Thomas-Jefferson-Straße 37, 68309 Mannheim
Objekttyp: Etagenwohnung
ID: Debbie-C.03
103,63 m²
4
mit Einbauküche
2
Kaltmiete: 1.340 €
Nebenkosten: 405 €
Kaution: 4.020 €
Verfügbar ab: 01.12.2025
1.745 € Warmmiete

Objektbeschreibung & Ausstattung

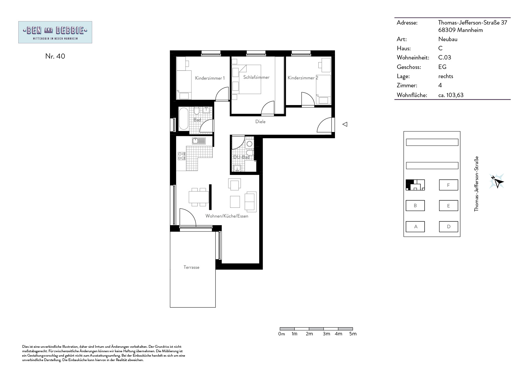
Diese attraktive 4-Zimmer-Wohnung ist Teil des Ben & Debbie und macht auf rund 100 Quadratmetern moderne Familienträume wahr! Von der Eingangsdiele gehen auf einer Seite die drei Schlafzimmer ab. Auf der gegenüberliegenden Seite öffnet sich der Flur zu einer halb offenen Küche und dem offenen Wohnbereich mit Zugang zu einer Terrasse. Zudem gehört zu der Wohnung ein Wannenbad mit Tageslicht und ein separates Duschbad mit Waschmaschinenanschluss. Ausreichend Stauraum bietet der Kellerraum im Untergeschoss.

Das Ben & Debbie bietet 141 Mietwohnungen zum Wohlfühlen. Hier gehen moderne Architektur, zeitgemäße Ausstattung und ein familienfreundliches Gesamtkonzept eine spannende Verbindung ein.
Großzügige Grünanlagen mit Spielplätzen und Sitzbereichen verbinden beide Teilbereiche zu einem harmonischen Ganzen. Geboten wird eine gemeinsame Tiefgarage sowie Aufzüge in sämtlichen Treppenhäusern.

Alle Besonderheiten:

  • Neubau:
  • Fußbodenheizung in der ganzen Wohnung
  • Einbauküche mit Elektrogeräten
  • Loggia/Terrasse
  • Eichenparkett in den Wohnbereichen sowie den Fluren
  • weiß tapezierte Wände
  • hochwertige großformatige Boden- und Wandfliesen in der Küche und dem Badezimmer
  • Duschbad mit Handtuchheizkörper
  • Waschmaschinen- und Trockneranschluss in der Wohnung
  • Deckenhöhen von 2,60 Meter
  • elektrische Rollläden in allen Wohnräumen
  • Zugang mittels Aufzug (in jedem Treppenhaus)
  • Kinderwagen- und Fahrradstellplätze, Mieterkeller
  • Tiefgarage - Bestandsgebäude:
  • Einbauküche mit Elektrogeräten
  • Balkon
  • pflegeleichtes Laminat in den Wohnbereichen sowie den Fluren
  • weiß tapezierte Wände
  • hochwertige großformatige Boden- und Wandfliesen in den Küchen, Badezimmern und WCs
  • Bäder mit Wanne oder Dusche
  • Waschmaschinen- und Trockneranschluss in der Wohnung
  • Fahrradstellplätze
  • Außenstellplätze

Energieausweis

Art: Bedarfsausweis
Baujahr: 2020
Endenergiebedarf: 65.3 kWh/(m²*a)
Baujahr lt. Energieausweis: 2020
Energieausweis: Bedarfsausweis
Wesentlicher Energieträger: Fernwärme
Energieausweis gültig bis: 18.04.2030
Klasse: B
0 50 100 150 200 250 >250

Lage

Auf einer Fläche von 1,4 Millionen Quadratmetern entsteht im Nordosten Mannheims mit FRANKLIN ein einzigartiger neuer Stadtteil. Urban und grün zugleich, bietet er einen innovativen Mix aus Wohnen und Arbeiten, aus Leben, Lernen und Spielen. Umfassende Sport- und Freizeitangebote, Schulen und Kitas, Einkaufsmöglichkeiten, Gastronomie und Gewerbe ergänzen hier in Zukunft das breite Angebot an Wohnformen. Ein kluges Verkehrskonzept gewährleistet die schnelle Anbindung an die umliegenden Stadtteile, in die Innenstadt und in die Natur.

Zentrum der Nahversorgung wird das COLUMBUS-QUARTIER. Es grenzt südöstlich an das urbane FRANKLIN-MITTE mit nachhaltig sanierten Bestandsgebäuden und attraktiven Neubauten. Weitere Teilquartiere mit jeweils ganz eigener Charakteristik sind die OFFIZIERSSIEDLUNG, FUNARI und das naturnahe SULLIVAN mit alten Kiefernbeständen, angrenzenden Wäldern und einem großzügigen Park für alle.

Als eigenständiger Stadtteil bietet FRANKLIN künftig alle Einrichtungen des täglichen Bedarfs auf kurzem Wege. Vom BEN AND DEBBIE sind es dann nur wenige Fußminuten bis zum COLUMBUS-QUARTIER mit einem stetig wachsenden Angebot an Supermärkten und Geschäften, Ärzten, Apotheken und Dienstleistern. Darüber hinaus entstehen in FRANKLIN mehrere neue Schulen und Kitas – eine Kita direkt vor Ort in der Wohnanlage!

Aktuell bieten sich die Versorgungsmöglichkeiten und Schulen in Käfertal oder Vogelstang an. Diese erreichen Sie mit Auto oder Fahrrad, Bus oder Tram – die Haltestellen sind nur wenige Hundert Meter entfernt. Mit der Tram sind Sie in etwa 20 Minuten ohne Umsteigen in der Mannheimer Innenstadt und am Hauptbahnhof. Sie fahren Auto? Bis zu den Autobahnen BAB 5 und 6 sind es nur jeweils 5 bis 10 Minuten.

Weitere Infos zum Franklin-Quartier finden Sie auch unter:

https://franklin-mannheim.de/wohnen/uebersicht


Sofortanfrage zum Objekt

    Mit * gekennzeichnete Felder sind Pflichtangaben. Persönliche Daten werden absolut vertraulich behandelt und nicht unbefugt an Dritte weitergegeben.