Perfekt für Familien: Exklusive Wohnung mit 2 Dachterrassen

map-pin Darmstädter Straße 8, 64404 Bickenbach
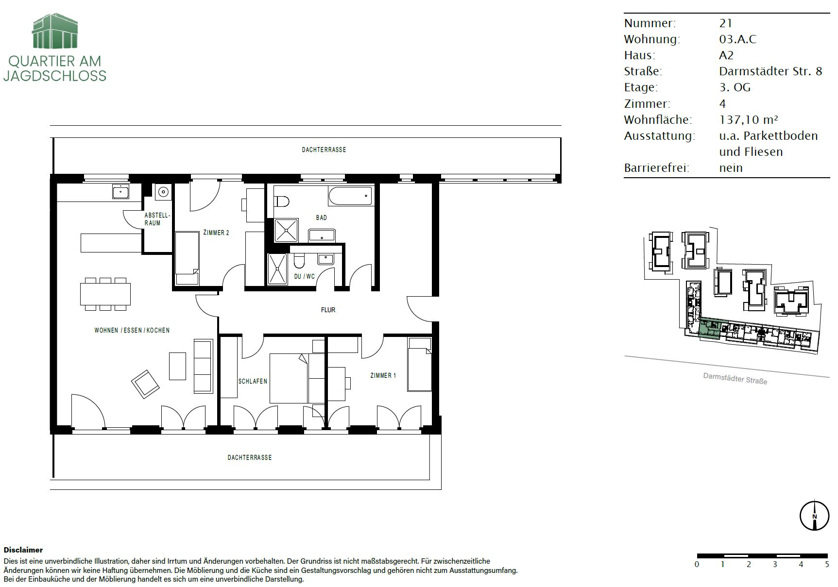
Objekttyp: Penthouse
Etage: 3 von 3
ID: QA-21
137,10 m²
4
mit Einbauküche
2
Balkon/Terrasse
Kaltmiete: 1.885 €
Nebenkosten: 415 €
Kaution: 5.655 €
Verfügbar ab: ab sofort
2.300 € Warmmiete

Objektbeschreibung & Ausstattung

Mit 94 bis 174 Quadratmetern finden Sie im fantastischen Quartier am Jagdschloss eine 4-Zimmer-Wohnung, die einfach perfekt für Sie ist! Die angebotene Wohnung verfügt über drei Schlafzimmer, einen Wohn- und Essbereich mit offener Küche sowie ein Tageslichtbad mit Wanne und Dusche und ein Duschbad – und damit noch lange nicht genug! Wenn Sie Entspannen möchten, können Sie sich zwischen den zwei Dachterrassen entscheiden – ein absoluter Luxus!

Insgesamt entstehen im Quartier am Jagdschloss 74 Wohnungen sowie eine Tiefgarage mit 171 Stellplätzen. Die Außen- und Innenanlagen sind mit viel Grün gestaltet und bieten auch einen Spielplatz für die Kleinsten – einfach perfekt!

Alle Besonderheiten:

  • Terrassen, Balkone, Loggien oder Dachterrassen zu jeder Wohnung
  • Moderne Badezimmer mit Markenkeramik
  • Fußbodenheizung und eletrische Handtuchheizkörper
  • Eichenparkett, Dielenboden oder Vinyl-Designboden in den Wohnbereichen
  • PKW-Stellplätze in der Tiefgarage
  • Außenanlagen mit Mietergärten und Spielflächen
  • Zentrale Lage in der Ortsmitte

Energieausweis

Art: Bedarfsausweis
Baujahr: 2023
Endenergiebedarf: 66 kWh/(m²*a)
Baujahr lt. Energieausweis: 2023
Energieausweis: Bedarfsausweis
Wesentlicher Energieträger: Fernwärme
Energieausweis gültig bis: 08.04.2031
Klasse: B
0 50 100 150 200 250 >250

Lage

Mitten in Bickenbach gelegen, bietet der Standort des QUARTIER AM JAGDSCHLOSS alle Vorzüge einer gewachsenen Infrastruktur. Einkaufsmöglichkeiten, Gastronomie und Freizeiteinrichtungen bieten alle Möglichkeiten täglicher Versorgung, ob Netto oder Bäckerei, Bistro, Eiscafé oder Restaurant – alles ist schnell zu erreichen und teilweise sogar im Quartier selbst vorhanden. Auch Grundschule und Kita liegen nicht einmal einen Kilometer weit entfernt, ebenso Sportanlagen, ein Boule-Platz sowie mehrere Spielplätze.

Entfernungen:
-Bahnhof Bickenbach 1 km / ca. 3 min. Pkw
-Auffahrt A5 Autobahn 3 km / ca. 4 min. PKW
-Darmstadt 15 km / ca. 21 min. Pkw / 22 min. ÖPNV
-Flughafen Frankfurt am Main 40 km / ca. 29 min. Pkw
-Mannheim 40 km / ca. 40 min. Pkw
-Heidelberg 47 km / ca. 40 min. Pkw
-Odenwald-Therme 41 km / ca. 49 min. Pkw
-MIRAMAR Erlebnisbad 29 km / ca. 26 min. Pkw / 58 min. ÖPNV


Sofortanfrage zum Objekt

    Mit * gekennzeichnete Felder sind Pflichtangaben. Persönliche Daten werden absolut vertraulich behandelt und nicht unbefugt an Dritte weitergegeben.