Perfekt für eure kleine Familie! 3-Zimmer Wohnung in Ludwigsfelde

map-pin Fichtestraße 5B, 14974 Ludwigsfelde
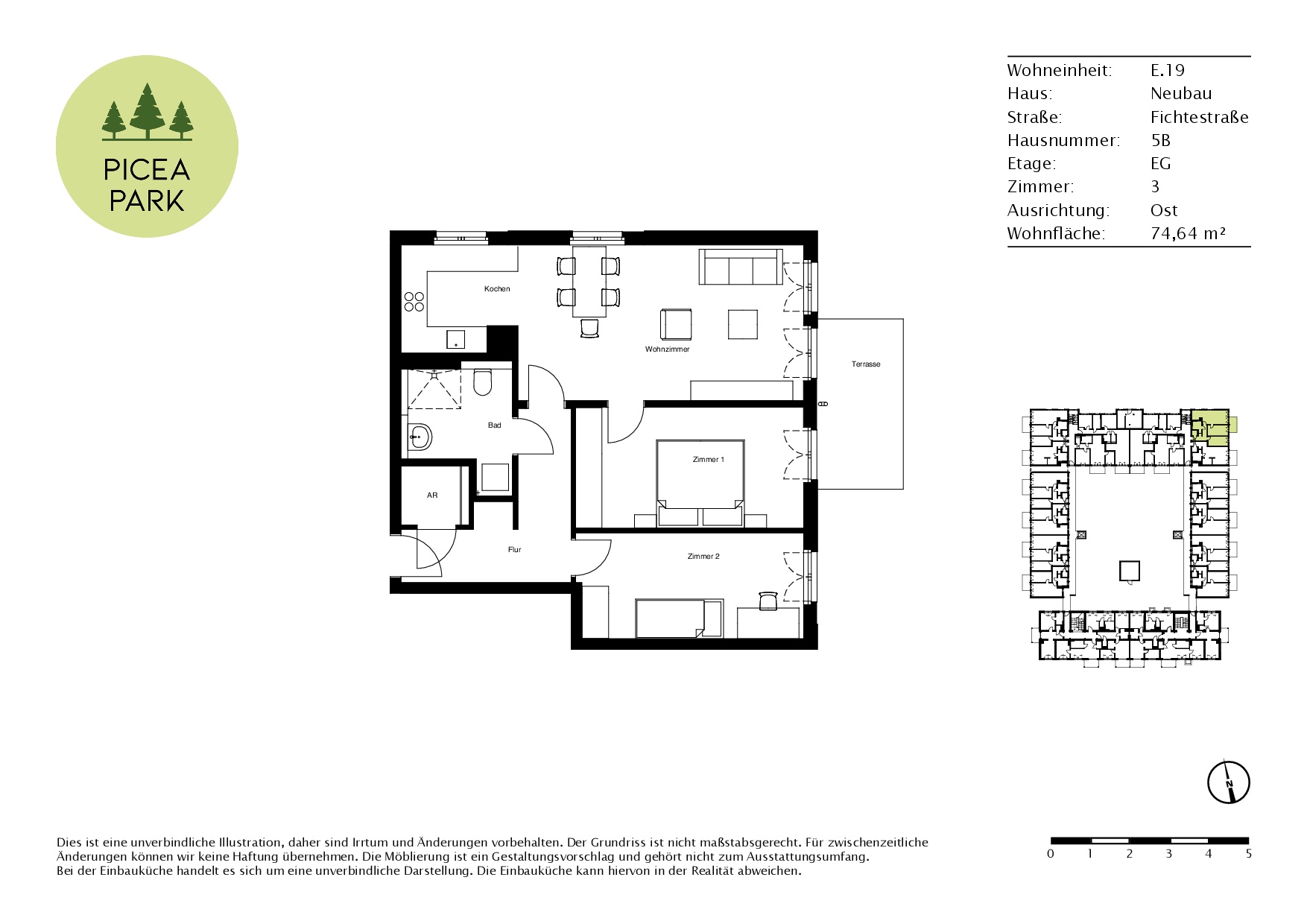
Objekttyp: Erdgeschosswohnung
ID: lf-pp-E.19
74,64 m²
3
mit Einbauküche
1
Kaltmiete: 1.200 €
Nebenkosten: 225 €
Kaution: 3.600 €
Verfügbar ab: 01.03.2026
1.425 € Warmmiete

Objektbeschreibung & Ausstattung

Das Bauvorhaben in der Ludwigsfelder Fichtestraße 5 umfasst die Sanierung des Bestandsgebäudes sowie in Ergänzung desselben den Bau von drei neuen Wohngebäuden. Als PICEA PARK wird das Projekt nach Fertigstellung insgesamt 72 Wohnungen mit 1 bis 4 Zimmern auf einem rd. 6.600 m2 großen Grundstück bieten.

Ein echter Hingucker ist die zweifarbige Fassadengestaltung der Neubauten, die sich optisch mit dunkelroten Aluminium- bzw. Kunststoffelementen für die Treppenhäuser und einem grauen Außenputz vom Bestandsgebäude abheben, das mit einer schlichten weißen Fassade überzeugt.

Die gesamte Wohnanlage wird über ein zentrales BHKW, das im Bestandsgebäude untergebracht ist, mit Wärme und Warmwasser versorgt. Für jede Wohnung steht ein Heizkreisverteiler mit zentraler Verbrauchserfassung zur Verfügung. Neben einem effizienten Be- und Entlüftungssystem und einer Dämmung gemäß Wärmeschutznachweis sorgen teilweise Sonnenschutzverglasungen für optimale energetische Werte.

Alle Besonderheiten:

  • Vinyl-Böden in Holzoptik in den Wohnräumen
  • Keramikfliesen in Bädern und WCs
  • Teilweise Fußbodenheizung
  • Einbauküche mit Markengeräten von Siemens und Samsung
  • Terrasse oder Balkon
  • Schallschutzverglasung
  • Teilweise Sonnenschutzverglasung
  • Außenliegender Aufzug
  • Breitbandkabel- und Telefonanschluss
  • Zentrale Wärmeversorgung über hauseigenes BHKW

Energieausweis

Art: Bedarfsausweis
Baujahr: 2021
Endenergiebedarf: 61 kWh/(m²*a)
Baujahr lt. Energieausweis: 2021
Energieausweis: Bedarfsausweis
Wesentlicher Energieträger: Fernwärme
Energieausweis gültig bis: 26.03.2023
Klasse: B
0 50 100 150 200 250 >250

Lage

Ob zu Fuß, mit dem Auto oder mit dem Fahrrad – auf schnellem Weg vom PICEA PARK sind nicht nur Supermarkt und Restaurant, Imbiss und Café, sondern auch Arztpraxis und Schule zu erreichen. TEDi, Penny, EDEKA, Apotheke und DM-Drogeriemarkt sind wortwörtlich Nah-Versorger. Das nur 750 m entfernte Kaufland ist in zwei Minuten mit dem Auto zu erreichen und bietet bis 22.00 Uhr weit mehr als nur die Dinge des täglichen Bedarfs.

Kita und Grundschule liegen weniger als 650 m entfernt, eine weitere Grundschule und das Gymnasium sind nur 2 bzw. 1,4 km entfernt. Nach nicht mehr als 10 min. Autofahrt erreicht man eine Arztpraxis und das Evangelische Krankenhaus. Ebenfalls in unmittelbarer Nähe befindet sich die Kristall Wohlfühltherme.

Ludwigsfelde ist darüber hinaus auch gut in das ÖPNV-Netz eingebunden. Ihr direkter Anschluss an den Berliner Anhalter Bahnhof verbindet die Stadt über Wittenberg mit Halle/Saale und Leipzig. Die Regionalexpresslinien RE4 und RE5 fahren zweimal pro Stunde zum Berliner Hauptbahnhof. Nach Potsdam führen neben der Regionalbahnlinie RB22 auch die Buslinien 715 und 619. Eine Haltestelle der Stadtbuslinie in unmittelbarer Nähe zum PICEA PARK verbindet innerorts.


Sofortanfrage zum Objekt

    Mit * gekennzeichnete Felder sind Pflichtangaben. Persönliche Daten werden absolut vertraulich behandelt und nicht unbefugt an Dritte weitergegeben.