Neubau! 3-Zimmer-Wohnung mit Einbauküche

map-pin Gustav-Adolf-Straße 114, 13086 Berlin
Objekttyp: Etagenwohnung
Etage: 2 von 5
ID: b-lac-h205
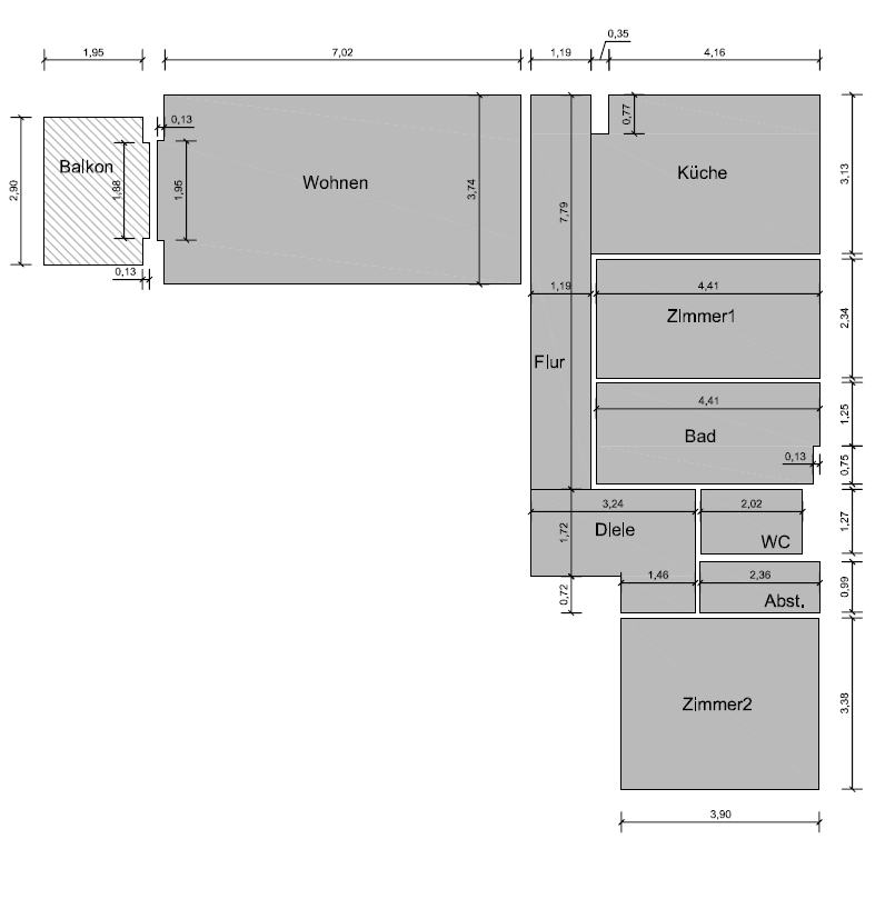
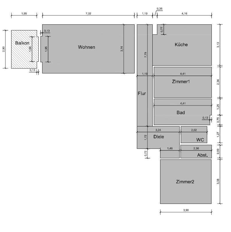
96,56 m²
3
mit Einbauküche
1
Balkon/Terrasse
Kaltmiete: 1.545 €
Nebenkosten: 430 €
Kaution: 4.635 €
Verfügbar ab: ab sofort
1.975 € Warmmiete

Objektbeschreibung & Ausstattung

Moderne 3-Zimmer-Etagenwohnung mit gut durchdachtem Grundriss, offenem Wohnbereich und voll ausgestatteter, moderner Küche. Helle Räume, ein stilvolles Badezimmer, ein zusätzliches Gäste-WC und ein sonniger Balkon bieten hohen Wohnkomfort in ansprechendem Ambiente.

Alle Besonderheiten:

  • - Fußbodenheizung - Videogegensprechanlage - Moderne Bäder - Bodentiefe Fenster
  • Balkon oder Terrasse zu fast jeder Wohnung - Aufzug - Tiefgaragenstellplätze - Mieterkeller - Großzügiger Innenhof mit Sitz- und Spielmöglichkeiten

Energieausweis

Art: Bedarfsausweis
Baujahr: 2021
Endenergiebedarf: 248 kWh/(m²*a)
Baujahr lt. Energieausweis: 2021
Energieausweis: Bedarfsausweis
Wesentlicher Energieträger: Fernwärme
Energieausweis gültig bis: 23.01.2031
Klasse: B
0 50 100 150 200 250 >250

Lage

Das Lacus Quartier befindet sich in einer ruhigen und familienfreundlichen Gegend des aufstrebenden Berliner Stadtteils Weißensee im Bezirk Pankow, in unmittelbarer Nähe zum begehrten Stadtteil Prenzlauer Berg. Der Standort zeichnet sich durch eine sehr gute Anbindung an den öffentlichen Nahverkehr aus. Innerhalb weniger Gehminuten erreicht man mehrere Tramlinien, mit denen man ohne Umstieg in etwa 20 Minuten ins Berliner Stadtzentrum gelangt. Mit dem Auto ist die Berliner Stadtautobahn in rund 10 Minuten erreichbar. Die Infrastruktur vor Ort ist hervorragend: In direkter Umgebung befinden sich Supermärkte, Bäckereien, Apotheken sowie weitere Geschäfte des täglichen Bedarfs. Auch Schulen, Kitas und medizinische Einrichtungen sind fußläufig erreichbar. Für Naherholung sorgt der nur wenige Minuten entfernte Weiße See mit Parkanlagen, Spielplätzen und einem Strandbad – ein beliebtes Ziel für Spaziergänge und Freizeitaktivitäten.


Sofortanfrage zum Objekt

    Mit * gekennzeichnete Felder sind Pflichtangaben. Persönliche Daten werden absolut vertraulich behandelt und nicht unbefugt an Dritte weitergegeben.