Modernes Wohnen in Fischbek: 3-Zimmer-Wohnung mit EBK und Loggia

map-pin Baumpieperweg 3, 21149 Hamburg
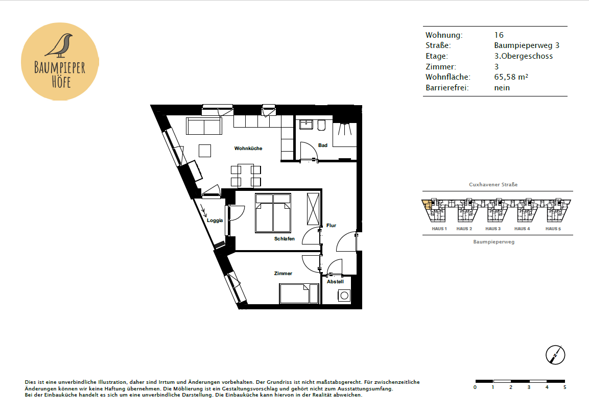
Objekttyp: Etagenwohnung
Etage: 3 von 4
ID: HH-BPH-16
65,33 m²
3
mit Einbauküche
1
Balkon/Terrasse
Kaltmiete: 1.000 €
Nebenkosten: 240 €
Kaution: 3.000 €
Verfügbar ab: 01.11.2025
1.240 € Warmmiete

Objektbeschreibung & Ausstattung

Überzeugend in Grundriss und Raumaufteilung bietet die 3-Zimmer-Wohnung genügend Freiraum für Paare und kleine Familien. Wohltuend offen ist das Wohnzimmer gestaltet, das mit großzügigem Schnitt und harmonisch integriertem Küchenbereich punktet. Eine kleine Loggia ist vom Wohnbereich und von einem der Schlafzimmer aus betretbar. Ein zweites Schlafzimmer, ein Abstellraum und Bad mit Dusche komplettieren die Räume.

Alle Besonderheiten:

  • Designboden in den Wohnräumen
  • Fliesenboden in den Bädern
  • Fußbodenheizung
  • Einbauküche mit Markengeräten
  • Terrasse, Balkon bzw. Loggia oder Dachterrasse
  • Video-Gegensprechanlage
  • Aufzug
  • Tiefgarage

Energieausweis

Art: Bedarfsausweis
Baujahr: 2022
Endenergiebedarf: 63 kWh/(m²*a)
Baujahr lt. Energieausweis: 2022
Energieausweis: Bedarfsausweis
Wesentlicher Energieträger: Fernwärme
Energieausweis gültig bis: 14.08.2032
Klasse: B
0 50 100 150 200 250 >250

Lage

Attraktiv gelegen ist das neue Wohn-Quartier nicht nur in landschaftlicher, sondern auch in infrastruktureller Hinsicht. Mit der Bundesstraße 73, die durch Fischbek führt, ist die Anbindung an die A 7 und die A 1 gegeben. Der ÖPNV bietet mit zwei S-Bahn- und zwei Buslinien eine bequeme Verbindung innerhalb der Stadt. Zum Bahnhof Fischbek mit Anschluss an die S 3 sind es nur 5 min. mit dem Auto, zum Bahnhof Neugraben mit Anschluss an die S 3 und S 31 ist man 6 min. unterwegs. Das Gymnasium Neu Wulmstorf liegt nur ca. 2 km entfernt. Eine Grundschule und eine Sporthalle in Neugraben-Fischbek sind ebenfalls schnell zu erreichen. Ob zu Fuß oder mit dem Fahrrad – die Nahversorgung im Fischbeker Heidbrook umfasst die wichtigsten Dinge des täglichen Bedarfs bis hin zur ärztlichen Versorgung und macht kurze Wege möglich.

Entfernungen:

Hamburg Airport ca. 40 min. mit dem Pkw
HafenCity 27 km / ca. 40 min. mit dem Pkw
Hamburger Innenstadt 28 km / ca. 45 min. mit dem Pkw/ ca. 25 min. mit der Bahn
Bahnhof Fischbek (S 3) 1,5 km / ca. 4 min. mit dem Pkw

Sofortanfrage zum Objekt

    Mit * gekennzeichnete Felder sind Pflichtangaben. Persönliche Daten werden absolut vertraulich behandelt und nicht unbefugt an Dritte weitergegeben.