Moderne 4-Zimmer-Wohnung in heller und großzügiger Raumgestaltung

map-pin Liesel-Bach-Straße 46, 71046 Böblingen
Objekttyp: Etagenwohnung
Etage: 1 von 6
ID: BB-LB-1.1.5
99,96 m²
4
mit Einbauküche
2
Balkon/Terrasse
Kaltmiete: 1.420 €
Nebenkosten: 350 €
Kaution: 4.260 €
Verfügbar ab: ab sofort
1.770 € Warmmiete

Objektbeschreibung & Ausstattung

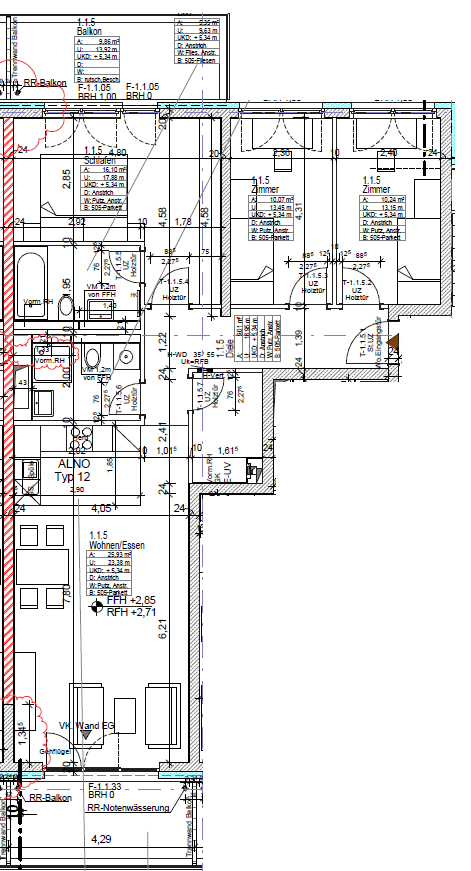
Diese großzügige 4-Zimmer-Wohnung überzeugt durch eine durchdachte Raumaufteilung und helle, freundliche Wohnbereiche.

Beim Betreten der Wohnung gelangen Sie in einen langen, einladenden Flur, der alle Räume optimal erschließt. Gleich zu Beginn befinden sich auf der rechten Seite zwei vielseitig nutzbare Zimmer, die sich ideal als Schlaf-, Kinder-, Gäste- oder Arbeitszimmer eignen.

Am Ende des Flurs auf der rechten Seite erwartet Sie ein weiteres Zimmer mit direktem Zugang zum großzügigen Balkon – perfekt als Elternschlafzimmer oder ruhiger Rückzugsort. Ebenfalls auf dieser Seite befindet sich ein modernes Badezimmer mit Badewanne.

Auf der linken Seite des Flurs, ebenfalls im hinteren Bereich, liegt ein weiteres Badezimmer mit Dusche sowie Waschmaschinenanschluss. Gegenüber befindet sich ein praktischer Abstellraum, der zusätzlichen Stauraum bietet.

Das Herzstück der Wohnung bildet der lichtdurchflutete Wohn- und Essbereich mit integrierter Einbauküche. Die offene Gestaltung schafft eine angenehme Wohnatmosphäre und lädt zum Verweilen ein. Von hier aus gelangen Sie ebenfalls direkt auf den Balkon, der zusätzlichen Wohnkomfort im Freien bietet.

Alle Besonderheiten:

  • Einbauküche inkl. Elektrogeräten 
  • Echtholzparkett in Fluren und Wohnbereichen
  • jede Wohnung mit Balkon oder (Dach)Terrasse
  • Bodentiefe Fenster- und Fenstertüren
  • tapezierte Wände
  • Fußbodenheizung
  • modern ausgestattete Badezimmer
  • Gegensprechanlagen und Aufzüge
  • PKW-Stellplätze in Tiefgarage
  • aufwändig gestaltete Grün- und Spielanlagen

Energieausweis

Art: Verbrauchsausweis
Baujahr: 2014
Baujahr lt. Energieausweis: 2014
Energieausweis: Verbrauchsausweis
Wesentlicher Energieträger: Strom
Energieausweis gültig bis: 16.06.2035
Klasse: B

Lage

Das Projekt in der Lisel‑Bach‑Straße 40–50 liegt in bester, urbaner Lage im Herzen von Böblingen‑Flugfeld. Die öffentlichen Verkehrsmittel sind hervorragend angebunden: Der S‑ und Regionalbahnhof Böblingen mit Verbindungen der S‑Bahn (z.B. S1, S60) sowie Regionalzügen ist in wenigen Minuten zu Fuß erreichbar – von hier erreichen Sie unter anderem die Stuttgarter Innenstadt in ca. 25 Minuten.

Auch Buslinien halten direkt in der Umgebung und ergänzen den Nahverkehr optimal.

Für den täglichen Bedarf und Freizeit: Das Einkaufszentrum Mercaden mit vielfältigen Geschäften, Restaurants und Sie schnell fußläufig, ebenso wie Supermärkte, Arztpraxen und weitere Nahversorger. Für Entspannung und Erholung bieten die Böblinger Seen und grüne Freiräume in der Umgebung zusätzliche Aufenthaltsqualität.

Sonstiges

Wir bitten Sie Terminanfragen direkt über das Kontaktformular zu senden.

Bei den Bildern handelt es sich um Fotos einer Musterwohnung im Projekt. Ausstattung und Schnitt können abweichen.

HAFTUNGSAUSSCHLUSS:
Diese Anzeige dient nur der ersten Information und stellt kein Vertragsangebot dar. Die Anzeige begründet keine vertraglichen Ansprüche. Der Inhalt und die Angaben wurden nach bestem Wissen und Gewissen ermittelt. Für Richtigkeit und Vollständigkeit wird keine Haftung übernommen.


Sofortanfrage zum Objekt

    Mit * gekennzeichnete Felder sind Pflichtangaben. Persönliche Daten werden absolut vertraulich behandelt und nicht unbefugt an Dritte weitergegeben.