Moderne 3-Zimmer-Wohnung mit durchdachtem Grundriss

map-pin Weidentrift 83, 21502 Geesthacht
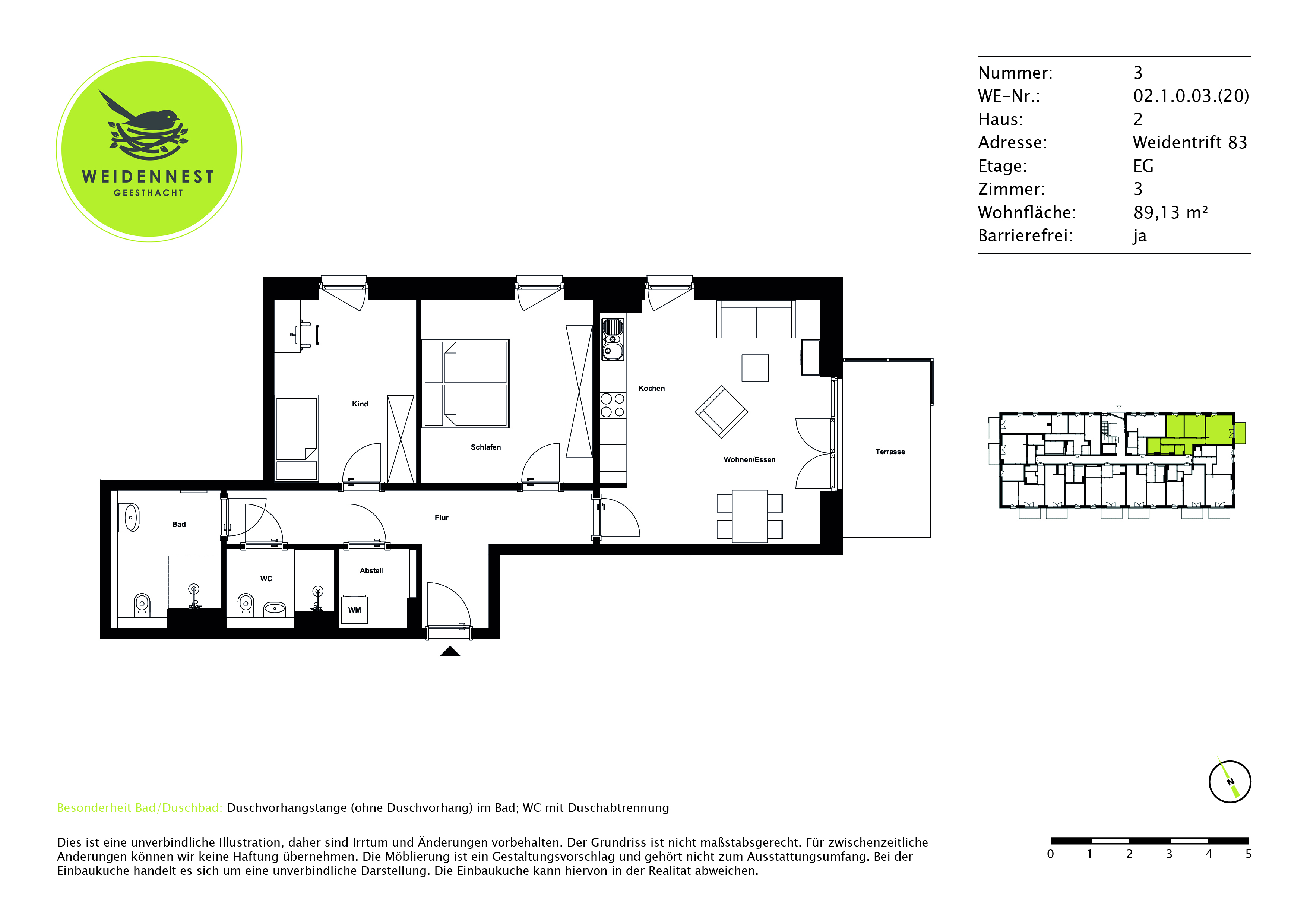
Objekttyp: Erdgeschosswohnung
ID: GH-WN-02.1.0.03.(20)
90,00 m²
3
mit Einbauküche
2
Kaltmiete: 1.215 €
Nebenkosten: 355 €
Kaution: 3.645 €
Verfügbar ab: ab sofort
1.570 € Warmmiete

Objektbeschreibung & Ausstattung

Südöstlich von Hamburg, direkt am Elbufer, liegt die Stadt Geesthacht. Hier entstand im Jahr 2021 das in Massivbauweise errichtete und mit der für die Region typischen Klinkerfassade versehene Projekt Weidennest. Das Quartier bietet insgesamt 48 Wohneinheiten, verteilt auf drei Geschosse in zwei Gebäuden. Kellerräume, Fahrradstellplätze als auch Kfz-Stellplätze stehen zur Verfügung.

Die 1- bis 4-Zimmer-Wohnungen bieten Singles, Paaren und Pendlern, aber auch jungen Familien und Senioren ein komfortables Zuhause in großzügig geschnittenen Wohnzimmern mit sinnvoll integrierten Koch- und Essbereichen sowie Zutritt zu Dachterrasse, Balkon oder Terrasse. Weitere Informationen entnehmen Sie dem Grundriss.

Die Miete wird durch den vom Statistischen Bundesamt monatlich ermittelten Preisindex „Verbraucherpreisindex für Deutschland“, bezogen auf das Basisjahr (2010=100) bestimmt (Indexmiete).

Alle Besonderheiten:

  • Designbodenbelag in Wohnräumen, Küchen und Fluren
  • Boden- und Wandfliesen in den Bädern
  • Handtuchheizkörper
  • Fußbodenheizung
  • Einbauküche mit Elektrogeräten
  • Waschmaschinenanschluss in den Abstellräumen
  • Wechselsprechanlage
  • Kellerraum im Untergeschoss
  • Kfz-Stellplatz auf dem Grundstück

Energieausweis

Art: Bedarfsausweis
Baujahr: 2021
Endenergiebedarf: 44.3 kWh/(m²*a)
Baujahr lt. Energieausweis: 2019
Energieausweis: Bedarfsausweis
Energieausweis gültig bis: 23.11.2029
Klasse: A
0 50 100 150 200 250 >250

Lage

Buchstäblich zwischen Wiesen und Weiden liegt das neue Wohnquartier Weidentrift, dessen Entwicklung auf einer harmonischen Verbindung von Umgebung, Architektur und Freiflächen basiert. Das familienfreundlich gestaltete Wohnumfeld mit einem Mix verschiedener Haustypen und Gärten schafft ein nachbarschaftliches Miteinander ihrer Bewohner.

- Lage an der Bundesstraße B404 am nord-westlichen Ortseingang von Geesthacht
- Ein Hofladen und Bäcker sind gut fußläufig erreichbar
- Eine Bushaltestelle liegt in 250 m Entfernung
- Cafés, Restaurants und Supermärkte, die den täglichen Bedarf an Versorgung sicherstellen, finden sich im 1,5 km entfernten Ortskern – ebenso wie Ärzte und Apotheken.
- Ca. 30 km bis nach Hamburg

Sonstiges

Bitte kontaktieren Sie uns über das Kontaktformular, Sie erhalten umgehend eine Rückmeldung mit Terminbuchungslink von uns.

Wir weisen vorsorglich darauf hin, dass bei Abschluss des Mietvertrags eine Mindestmietdauer von 12 Monaten sowie eine Indexmiete vereinbart werden

Wir respektieren die Privatsphäre der Mieter. Bei den Bildern handelt es sich daher um eine Musterwohnung im gleichen Objekt. Der Zuschnitt der angebotenen Wohnung kann von den Bildern abweichen. Die Ausstattung (Böden, Wände, Küche, etc.) ist jedoch in allen Wohnungen identisch. Gerne können Sie sich im Zuge einer Besichtigung von der Wohnung überzeugen.

HAFTUNGSAUSSCHLUSS: Diese Anzeige dient nur der ersten Information und stellt kein Vertragsangebot dar. Die Anzeige begründet keine vertraglichen Ansprüche. Der Inhalt und die Angaben wurden nach bestem Wissen und Gewissen ermittelt. Für Richtigkeit und Vollständigkeit wird keine Haftung übernommen. Die Grundrisse sind nicht zur Maßentnahme geeignet.


Sofortanfrage zum Objekt

    Mit * gekennzeichnete Felder sind Pflichtangaben. Persönliche Daten werden absolut vertraulich behandelt und nicht unbefugt an Dritte weitergegeben.