Modern wohnen & draußen genießen – 3 Zimmer mit Terrasse & Einbauküche

map-pin Peter-Lennè-Straße 43, 14195 Berlin
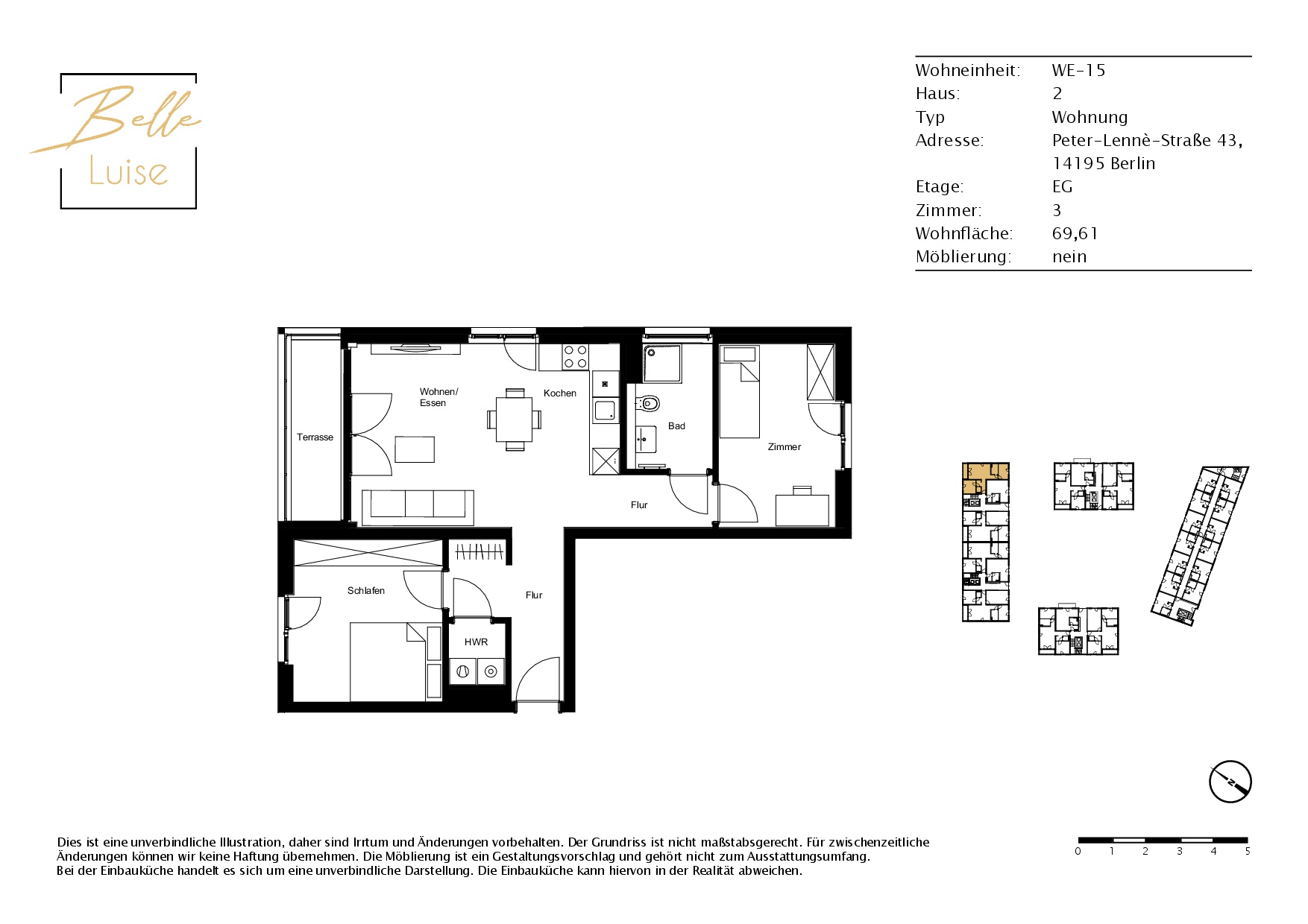
Objekttyp: Erdgeschosswohnung
ID: b-bl-15
69,61 m²
3
mit Einbauküche
1
Kaltmiete: 1.605 €
Nebenkosten: 245 €
Kaution: 4.815 €
Verfügbar ab: ab sofort
1.850 € Warmmiete

Objektbeschreibung & Ausstattung

Willkommen im neuen Zuhause – diese großzügige 3-Zimmer-Wohnung im Erdgeschoss vereint moderne Ausstattung mit durchdachter Raumaufteilung und einem echten Highlight: der privaten Terrasse mit Blick ins Grüne.

Zwei Flure und eine separate Diele schaffen klare Strukturen und ein angenehmes Raumgefühl. Der offene Wohn- und Essbereich bildet das Herzstück der Wohnung – mit stilvoll integrierter Einbauküche und direktem Zugang zur Terrasse, die den Wohnraum nach außen erweitert und zu entspannten Stunden im Freien einlädt.

Das geräumige Schlafzimmer bietet viel Platz für Ruhe und Rückzug. Das zweite Zimmer eignet sich ideal als Homeoffice, Kinder- oder Gästezimmer – flexibel nutzbar, je nach Lebenssituation.

Ein modernes Badezimmer mit bodengleicher Dusche sowie ein praktischer Hauswirtschaftsraum mit Anschlussmöglichkeiten runden das Komfortpaket ab.

Alle Besonderheiten:

  • Vinyl-Design-Boden in den Wohnräumen
  • Großformatige Feinsteinzeug-Fliesen in den Bädern und im Küchenbereich
  • Fußbodenheizung in allen Wohnbereichen und Bädern
  • Zusätzlicher Handtuchheizkörper in den Bädern
  • Vollausgestattete Einbauküchen in allen Wohnungen
  • Pantryküche in den möblierten Studioapartments
  • Balkon / Terrasse / Dachterrasse
  • 3-fach-Verglasung der Fenster
  • Elektrisch bedienbare Rollläden an allen Fenstern
  • Video-Gegensprechanlage
  • Glasfaseranschluss für schnelles Internet
  • Aufzug
  • Mieterkeller
  • Fernwärme

Energieausweis

Art: Bedarfsausweis
Baujahr: 2025
Endenergiebedarf: 52.8 kWh/(m²*a)
Baujahr lt. Energieausweis: 2025
Energieausweis: Bedarfsausweis
Wesentlicher Energieträger: Fernwärme
Energieausweis gültig bis: 03.05.2035
Klasse: B
0 50 100 150 200 250 >250

Lage

Urban leben, grün genießen – im BELLE LUISE, mitten im historischen Dahlem.
Hier treffen Ruhe, Kultur und Großstadtkomfort aufeinander. Alles für den täglichen Bedarf ist bequem zu Fuß erreichbar: zwei REWE-Märkte, Bäckereien, Cafés, Restaurants, Apotheken, Blumenladen und mehr.

Perfekt für Studierende, Familien und Berufstätige:
Kurze Wege zu Uni, Kitas, Schulen und Bibliotheken, dazu viel Grün und Freizeitangebote wie der Botanische Garten, Spielplätze und die Domäne Dahlem mit Hofladen und Eventprogramm.

Schnell mobil: U3, diverse Buslinien, schnelle Anbindung an die B1 und A100 – ob City, Büro oder Ausflug ins Grüne: alles liegt in Reichweite.

Sonstiges

Wir bitten Sie Terminanfragen über das Kontaktformular zu senden.

Bei den Bildern handelt es sich um Aufnahmen der Musterwohnung. Gerne können Sie sich im Zuge einer Besichtigung der Musterwohnung selbst vom BELLE LUISE überzeugen.

Wir weisen vorsorglich darauf hin, dass im Falle einer Anmietung mietvertraglich ein Kündigungsverzicht von 12 Monaten vereinbart wird.

Alle Infos zum Projekt unter http://www.belle-luise.de/

HAFTUNGSAUSSCHLUSS:
Diese Anzeige dient nur der ersten Information und stellt kein Vertragsangebot dar. Die Anzeige begründet keine vertraglichen Ansprüche. Der Inhalt und die Angaben wurden nach bestem Wissen und Gewissen ermittelt. Für Richtigkeit und Vollständigkeit wird keine Haftung übernommen.


Sofortanfrage zum Objekt

    Mit * gekennzeichnete Felder sind Pflichtangaben. Persönliche Daten werden absolut vertraulich behandelt und nicht unbefugt an Dritte weitergegeben.