Modern Living trifft Digitalisierung: 4-Zimmer-Apartment im Quartier FÜRstenried West

map-pin Forst-Kasten-Allee 123 b, 81475 München
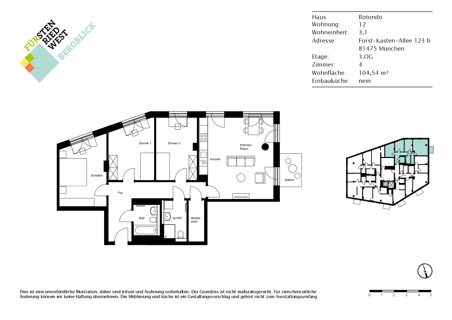
Objekttyp: Wohnungen
Etage: 3 von 17
ID: bb_12
104,54 m²
4
2
Balkon/Terrasse
Kaltmiete: 2.300 €
Nebenkosten: 330 €
Kaution: 6.900 €
Verfügbar ab: ab sofort
2.630 € Warmmiete

Objektbeschreibung & Ausstattung

Diese 4-Zimmer-Wohnung verfügt über zwei Kinderzimmer, ein großzügiges Schlafzimmer und eine helle Wohnküche mit Balkonzugang, die das Herzstück des Apartments bildet. Das Hauptbad verfügt über eine Badewanne, die für entspannte Momente sorgt. Das zweite Bad ist mit Dusche und Waschmaschinenanschluss ausgestattet und bietet Komfort für den Alltag. Ein praktischer Abstellraum sorgt für ausreichend Stauraum und ergänzt das durchdachte Raumkonzept.

Alle Besonderheiten:

  • Die Wohnungen im BERGBLICK wurden mit dem Anspruch gestaltet, zeitgemäße Wohnqualität mit langlebiger Ausstattung zu verbinden. Die klare Formsprache der Architektur setzt sich auch im Innenraum fort: Helle Materialien, funktionale Grundrisse und ein hoher Wohnkomfort prägen das Erscheinungsbild. - Eichenparkett in Wohnräumen und Fluren - Fußbodenheizung in allen Wohnbereichen - Feinsteinzeug-Fliesen in Küche, Bad und WC - Handtuchheizkörper im Bad - 3-fach-verglaste Fenster mit hoher Energieeffizienz - Verschattungssysteme in den Obergeschossen - Einbauküchen in allen 1- bis 2-Zimmer-Wohnungen - Balkon zu fast jeder Wohneinheit - IP-fähige Gegensprechanlage - Vollständig digitalisiertes Zugangssystem (inkl. Chip-Zutritt zu den Wohnungen) - Mieterstrom-Modell über Photovoltaik-Anlage - Begehbare Dachterrasse zur gemeinschaftlichen Nutzung - Kostenfreies Quartiersfitnessstudio im Erd- und ersten Obergeschoss (voraussichtlich ab Q3 2026)

Energieausweis

Art: Bedarfsausweis
Baujahr: 2024
Endenergiebedarf: 31 kWh/(m²*a)
Baujahr lt. Energieausweis: 2024
Energieausweis: Bedarfsausweis
Wesentlicher Energieträger: Fernwärme
Energieausweis gültig bis: 18.03.2034
Klasse: A
0 50 100 150 200 250 >250

Lage

Im Süden Münchens liegt Fürstenried – ein Stadtteil, der ursprünglich als reines Wohngebiet konzipiert wurde und bis heute von großzügigen Wohnanlagen, charmanten Einfamilienhäusern und viel Grün geprägt ist. Das namensgebende Schloss Fürstenried, auch liebevoll „Klein-Nymphenburg“ genannt, ist das markanteste Bauwerk des Viertels und spiegelt den gewachsenen Charakter des Quartiers wider. Für Familien bietet Fürstenried ideale Bedingungen: eine hervorragend ausgebaute Infrastruktur, zahlreiche Spiel- und Grünflächen sowie eine direkte Nähe zur Natur sorgen für hohe Wohn- und Lebensqualität. Der öffentliche Nahverkehr und die schnelle Anbindung an die Autobahn machen sowohl das Münchner Stadtzentrum als auch das Umland bequem erreichbar. Zwischen den Häuserzeilen schaffen begrünte Verbindungswege, Gärten und kleine Parks ruhige Rückzugsorte und fördern die nachbarschaftliche Gemeinschaft. Zu den besonderen Erholungsangeboten zählen der Schlosspark, der Forstenrieder Park und der Wildpark – allesamt direkt vor der Haustür gelegen. Historische Sehenswürdigkeiten wie die Kirche St. Matthias oder die spätgotische Pestsäule verleihen dem Viertel kulturelle Tiefe. Rund um den Schweizer Platz mit dem Brunnen „Schweizer Brocken“ findet regelmäßig ein Wochenmarkt statt, der die lokale Nahversorgung – ergänzt durch einen REWE und den geplanten EDEKA – abrundet. Auch gastronomisch bietet Fürstenried mit traditionellen Wirtshäusern und gemütlichen Biergärten viele Anlaufpunkte, die das soziale Leben im Viertel bereichern. Nicht zuletzt überzeugt Fürstenried durch seine Nähe zu Obersendling, einem bedeutenden Wirtschafts- und Gewerbestandort. Für dort Berufstätige verbindet sich hier urbanes Leben mit naturnahem Wohnen auf besonders attraktive Weise.

Sonstiges

Bei den Bildern handelt es sich um unverbindliche Visualisierungen und Bilder einer Musterwohnung. Gerne können Sie sich im Zuge einer Besichtigung der Musterwohnung vom BERGBLICK überzeugen.

WEITERE INFOS UNTER WWW.BERGBLICK-FUERSTENRIEDWEST.DE

HAFTUNGSAUSSCHLUSS:
Diese Anzeige dient nur der ersten Information und stellt kein Vertragsangebot dar. Die Anzeige begründet keine vertraglichen Ansprüche. Der Inhalt und die Angaben wurden nach bestem Wissen und Gewissen ermittelt. Für Richtigkeit und Vollständigkeit wird keine Haftung übernommen. Die Grundrisse sind nicht zur Maßentnahme geeignet. Bei den Flächenangaben handelt es sich um Planmaße.
Bei den Objektdarstellungen handelt es sich um unverbindliche Visualisierungen (Visualisierungen von ADRIAN BECK PHOTOGRAPHER / h4a Gessert + Randecker).


Sofortanfrage zum Objekt

    Mit * gekennzeichnete Felder sind Pflichtangaben. Persönliche Daten werden absolut vertraulich behandelt und nicht unbefugt an Dritte weitergegeben.