Kompakter Grundriss, kurze Wege

map-pin Bahnhofstraße 27-31, 21614 Buxtehude
Objekttyp: Etagenwohnung
Etage: 4 von 4
ID: BUX-BA-0409
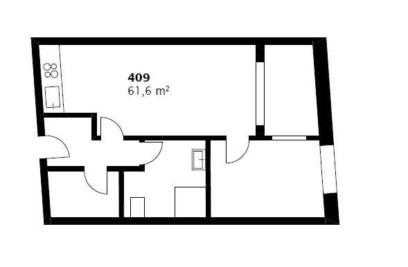
61,60 m²
2
mit Einbauküche
1
Balkon/Terrasse
Kaltmiete: 880 €
Nebenkosten: 155 €
Kaution: 2.640 €
Verfügbar ab: ab sofort
1.035 € Warmmiete

Objektbeschreibung & Ausstattung

Die hier angebotene 2-Zimmer-Wohnung im 4. Obergeschoss ist Teil des Wohn- und Geschäftshauses in der Bahnhofstraße 27-31 in Buxtehude. Vom Flurbereich sind ein Abstellraum mit Waschmaschinenanschluss, das Bad mit bodengleicher Dusche und der Wohn- und Essbereich erschlossen. Das Wohnzimmer ist einladend geschnitten und verfügt über eine offene Küche mit moderner Einbauküche. Das Schlafzimmer ist an das Wohnzimmer angeschlossen. Sowohl vom Wohn- als auch vom Schlafzimmer besteht Zugang zum Balkon. Zusätzlich kann ein Außenstellplatz mit angemietet werden.

Alle Besonderheiten:

  • Die Wohnungen im 1. bis 3. OG verfügen über:
  • Laminat in den Wohnbereichen und Fluren
  • gefliestes Badezimmer mit modernen Armaturen, Einbauspülkästen
  • weiß gespachtelte Wände und Decken
  • teils bodentiefe Fensterfronten und Fenstertüren
  • hochwertige Einbauküche inkl. Elektrogeräten Die Wohnungen im 4. OG verfügen über:
  • Parkett in den Wohnbereichen und Fluren
  • Fußbodenheizung in der gesamten Wohnung
  • elektrische Außenverschattung
  • Videogegensprechanlage
  • Stellplatz zur Anmietung - Fahrrad- und Kinderwagenabstellplätze
  • gefliestes Badezimmer mit modernen Armaturen, Einbauspülkästen
  • weiß gespachtelte Wände und Decken
  • teils bodentiefe Fensterfronten und Fenstertüren
  • hochwertige Einbauküche inkl. Elektrogeräten Weiterhin gibt es im Objekt:
  • Außenstellplätze zur Anmietung
  • Fahrrad- und Kinderwagenabstellplätze

Energieausweis

Art: Verbrauchsausweis
Baujahr: 1972
Endenergiebedarf: 77 kWh/(m²*a)
Baujahr lt. Energieausweis: 1972
Energieausweis: Verbrauchsausweis
Wesentlicher Energieträger: Gas
Energieausweis gültig bis: 21.03.2032
Klasse: C
0 50 100 150 200 250 >250

Lage

Die Wohnung liegt zentral und verkehrsgünstig im Zentrum von Buxtehude. So sind die Bushaltestellen "Stadtsparkasse" und "Marktkauf" in nur wenigen Gehminuten entfernt. Der Bahnhof Buxtehude ist ebenfalls in unmittelbarer Umgebung und in nur 5 Gehminuten vom Objekt entfernt. Einrichtungen des täglichen Bedarfs, wie Supermärkte, Bäckereien und Apotheken sind in der unmittelbaren Umgebung und teilweise direkt im Erdgeschoss des Objekts angesiedelt.

Sonstiges

ANFRAGEN BITTE ÜBER DAS KONTAKTFORMULAR!

HAFTUNGSAUSSCHLUSS:
Diese Anzeige dient nur der ersten Information und stellt kein Vertragsangebot dar. Die Anzeige begründet keine vertraglichen Ansprüche. Der Inhalt und die Angaben wurden nach bestem Wissen und Gewissen ermittelt. Für Richtigkeit und Vollständigkeit wird keine Haftung übernommen.

Sofortanfrage zum Objekt

    Mit * gekennzeichnete Felder sind Pflichtangaben. Persönliche Daten werden absolut vertraulich behandelt und nicht unbefugt an Dritte weitergegeben.