Ihr neues Zuhause: Attraktive 2-Zimmer-Wohnung

map-pin Rheinstr. 25a, 64283 Darmstadt
Objekttyp: Erdgeschosswohnung
ID: DA-LT-0_01
65,81 m²
2
mit Einbauküche
1
Kaltmiete: 1.220 €
Nebenkosten: 190 €
Kaution: 3.660 €
Verfügbar ab: 01.12.2025
1.410 € Warmmiete

Objektbeschreibung & Ausstattung

*Kommen Sie am 14.03.2026 zwischen 10:00 und 14:00 Uhr vorbei zur offenen Besichtigung in den Luisenterrassen*

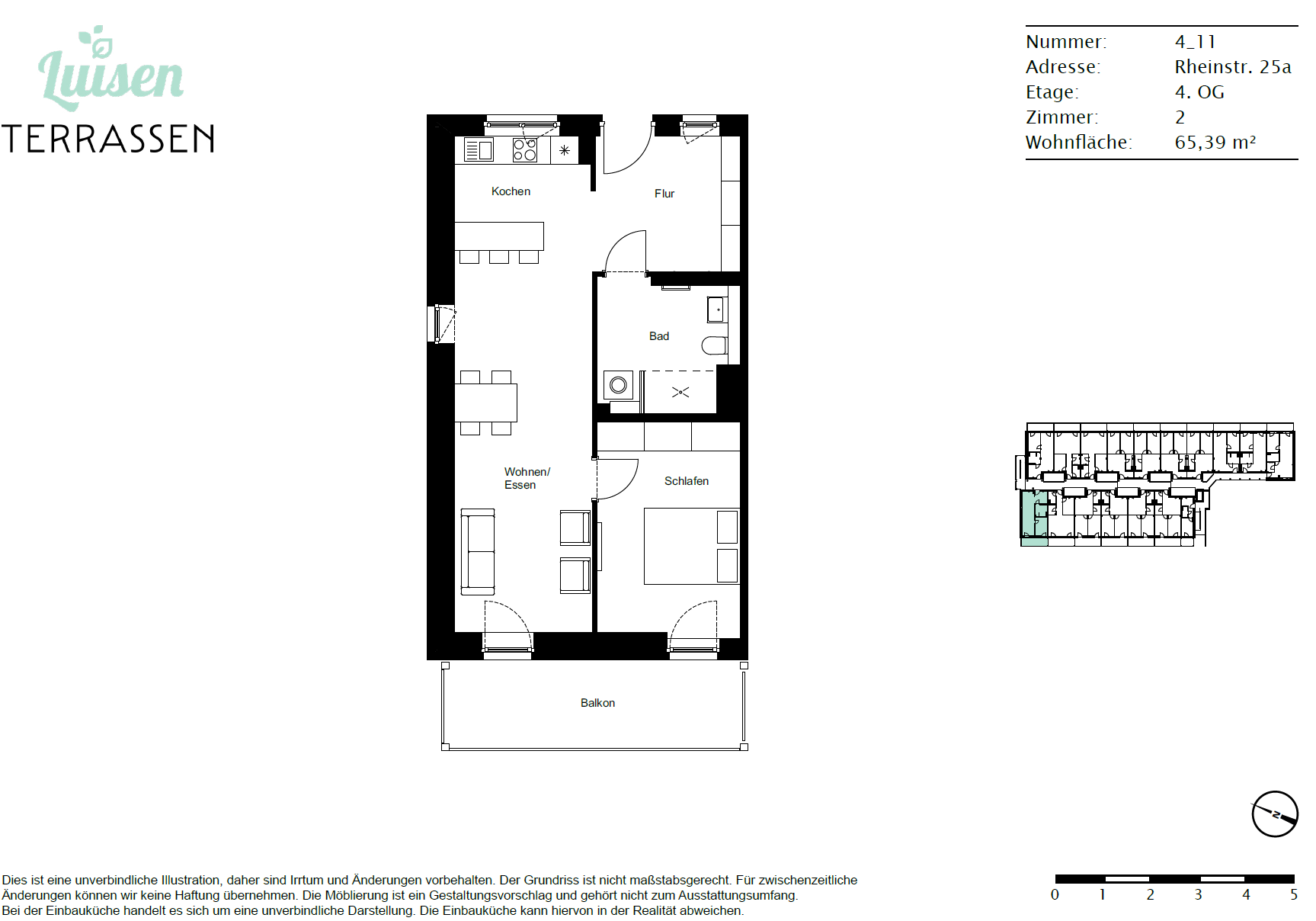
Diese stilvolle 2-Zimmer-Beispiel-Wohnung überzeugt mit einer klugen Raumaufteilung und lichtdurchflutetem Wohnbereich. Das offene Wohn- und Esszimmer mit direktem Zugang zur Terrasse bildet das Herzstück der Wohnung – ideal zum Entspannen, Kochen oder Gästeempfang. Ein geräumiges Schlafzimmer, ein modernes Bad mit bodengleicher Dusche sowie ein praktischer Abstellraum mit Waschmaschinenanschluss bieten Komfort auf ganzer Linie. Diese Wohnung eignet sich ideal für Paare oder Singles, die urbanes Wohnen mit hoher Lebensqualität verbinden möchten.

Alle Besonderheiten:

  • Hochwertiger PVC-Belag in Wohn-, Ess- und Schlafräumen
  • Moderne Fliesenböden in den Bädern
  • Fußbodenheizung in allen Wohnbereichen und Bädern
  • Zusätzlicher elektrischer Handtuchheizkörper in den Bädern
  • 3-fach verglaste Fenster (Wärme- u. Schallschutz)
  • Elektrisch betriebene Rollläden
  • Teilweise bodentiefe Fenster mit überdachtem Austritt
  • Balkon oder Terrasse zu jeder Wohnung
  • Moderne Einbauküchen mit Markengeräten
  • Gegensprechanlage
  • Glasfaseranschluss für schnelles Internet

Energieausweis

Art: Bedarfsausweis
Baujahr: 2025
Endenergiebedarf: 62.1 kWh/(m²*a)
Baujahr lt. Energieausweis: 2025
Energieausweis: Bedarfsausweis
Energieausweis gültig bis: 18.03.2025
Klasse: B
0 50 100 150 200 250 >250

Lage

In perfekter Innenstadtlage und mit bester Anbindung an den ÖPNV und das überregionale Straßennetz entsteht das neue Wohnquartier LUISEN TERRASSEN. Eingebettet in ein lebendiges Umfeld mit Gastronomie, Kultur und grünen Rückzugsorten, findet man hier eine ausgewogene Mischung aus Arbeiten, Wohnen und Kultur. Für Berufspendler optimal ist der schnelle Anschluss an das Autobahnnetz – in nur wenigen Minuten sind die A5, die A67 und die A672 erreichbar. Auch der Hauptbahnhof liegt keine zwei Kilometer weit entfernt. Darüber hinaus bietet das Viertel viel Freiraum für Radfahrer – ob durch die fahrradfreundliche Umgestaltung der Rheinstraße oder die moderne Fahrradbrücke am Mozartturm, die die Rheinstraße elegant und funktional mit dem Europaviertel und dem Hauptbahnhof verbindet. Die Nahversorgung ist vielfältig, reichhaltig und bequem zu erreichen. Vieles lässt sich schnell zu Fuß erledigen. Straßenbahn- und Bushaltestellen, Arztpraxen und Zahnärzte sowie zahlreiche Einkaufsmöglichkeiten liegen im Umkreis von weniger als 500 Metern. Auch die Hochschule Darmstadt und das Klinikum befinden sich in unmittelbarer Nähe.

Sonstiges

Wir bitten Sie Terminanfragen über das Kontaktformular zu senden.

Bei den Bildern handelt es sich um unverbindliche Visualisierungen und Bilder der Musterwohnung. Gerne können Sie sich im Zuge einer Besichtigung der Musterwohnung selbst von den Luisenterrassen überzeugen.

HAFTUNGSAUSSCHLUSS:
Diese Anzeige dient nur der ersten Information und stellt kein Vertragsangebot dar. Die Anzeige begründet keine vertraglichen Ansprüche. Der Inhalt und die Angaben wurden nach bestem Wissen und Gewissen ermittelt. Für Richtigkeit und Vollständigkeit wird keine Haftung übernommen.


Sofortanfrage zum Objekt

    Mit * gekennzeichnete Felder sind Pflichtangaben. Persönliche Daten werden absolut vertraulich behandelt und nicht unbefugt an Dritte weitergegeben.