Familienwohnung in der Johannesvorstadt!

map-pin Lassallestraße 29, 99086 Erfurt
Objekttyp: Etagenwohnung
Etage: 1 von 4
ID: EF-JGN-1808
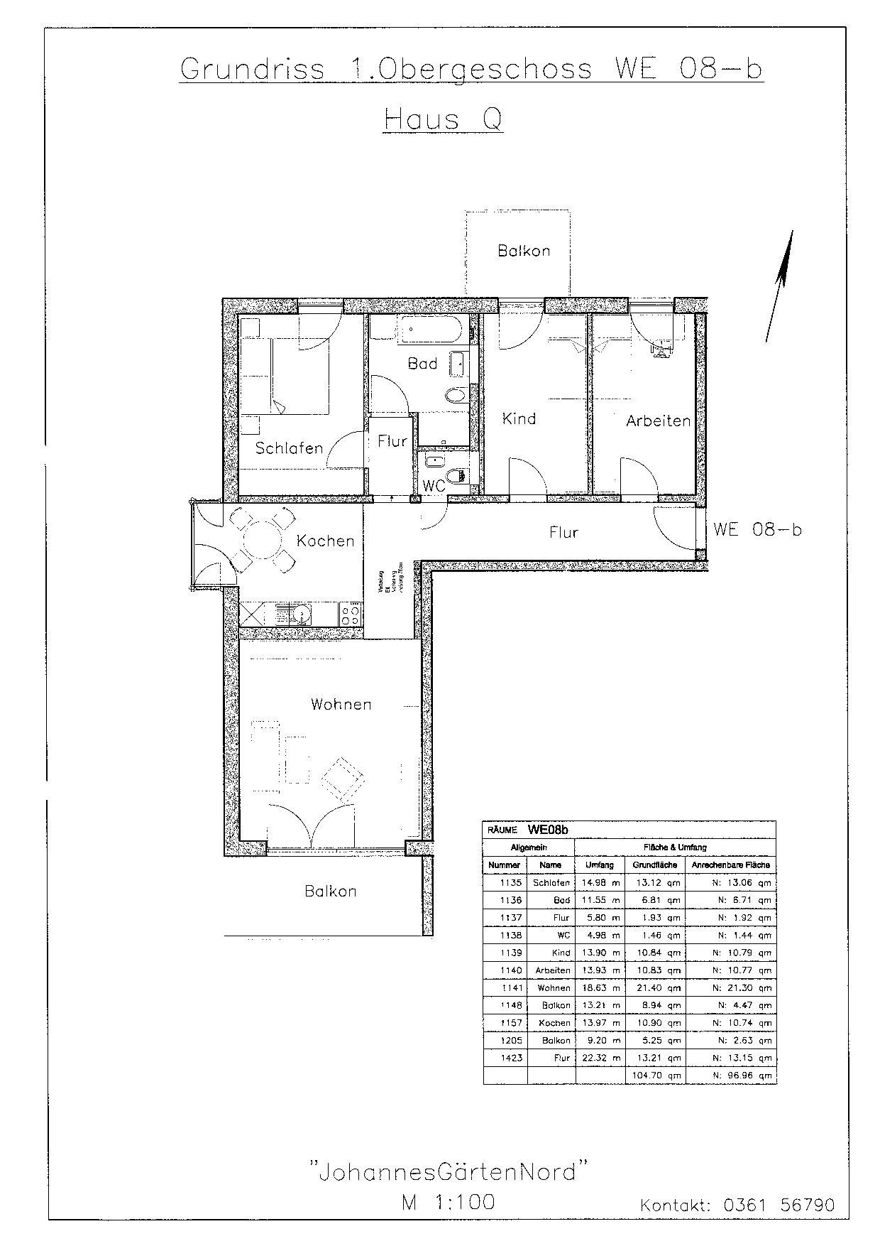
96,96 m²
4
Kaltmiete: 1.205 €
Nebenkosten: 302 €
Kaution: 3.615 €
Verfügbar ab: 01.11.2025
1.507 € Warmmiete

Objektbeschreibung & Ausstattung

Die hier angebotene Wohnung besteht aus einem lichtdurchfluteten Wohnbereich mit Terrassenzugang, 3 Schlafzimmern, einer halboffenen Küche (ohne EBK), einem Flur, einem Bad mit Wanne und Dusche und einem Gäste-WC.

Bitte beachten: Wir respektieren die Privatsphäre der derzeitigen Mieter. Bei den Bildern handelt es sich daher um Aufnahmen einer schnittgleichen Wohnung im selben Objekt. Der Ausstattungsstandard der Wohnungen ist gleich.

Bei Abschluss des Mietvertrags werden eine 12-monatige Mindestmietdauer sowie eine Indexmiete vereinbart.

Alle Besonderheiten:

  • Fußbodenheizung in der ganzen Wohnung
  • Balkon / Terasse zu fast jeder Wohnung
  • hochwertige Boden- und Wandfliesen in den Badezimmern und WCs
  • Bad mit Wanne / Dusche mit Handtuchheizkörper - Waschmaschinen- und Trockneranschluss in der Wohnung
  • bodentiefe Fensterfronten mit Außenrollläden
  • Gegensprechanlage

Energieausweis

Art: Bedarfsausweis
Baujahr: 2015
Endenergiebedarf: 48.4 kWh/(m²*a)
Baujahr lt. Energieausweis: 2016
Energieausweis: Bedarfsausweis
Wesentlicher Energieträger: Fernwärme
Energieausweis gültig bis: 16.08.2026
Klasse: A
0 50 100 150 200 250 >250

Lage

Die Johannesvorstadt ist ein junger, dynamischer Stadtteil in unmittelbarer Nähe zur historischen Altstadt und den großen Einkaufsstraßen Erfurts. Geprägt von einer geschlossenen Gründerzeitbebauung liegt sie nordöstlich der Altstadt vor dem Johannestor.

Die Wohnung liegt ruhig und zentrumsnah im Stadtteil Johannesvorstadt von Erfurt. So ist die Tram-Haltestelle "Lutherkirche/SWE" in nur wenigen Gehminuten entfernt. Der Erfurter Hauptbahnhof ist mit direkter Verbindung in ca. 14 Minuten zu erreichen. Weiterhin sind die A4 und A71 innerhalb von ca. 18 Minuten Fahrtzeit erreichbar. Einrichtungen des täglichen Bedarfs, wie Supermärkte, Bäckereien und Apotheken sind in der näheren Umgebung angesiedelt.

Sofortanfrage zum Objekt

    Mit * gekennzeichnete Felder sind Pflichtangaben. Persönliche Daten werden absolut vertraulich behandelt und nicht unbefugt an Dritte weitergegeben.