Familienoase: Charmante 4-Zimmer-Wohnung

map-pin Schmohlstraße 2, 13086 Berlin
Objekttyp: Etagenwohnung
Etage: 1 von 5
ID: b-lac-e105
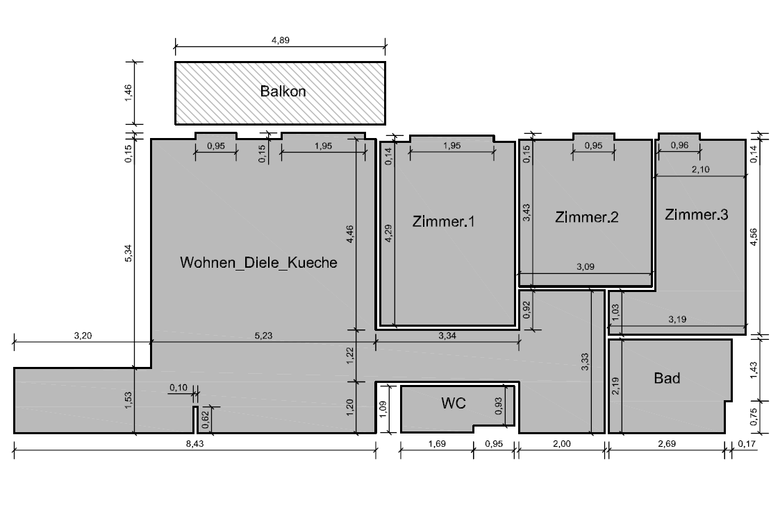
99,65 m²
4
mit Einbauküche
2
Balkon/Terrasse
Kaltmiete: 1.750 €
Nebenkosten: 380 €
Kaution: 5.250 €
Verfügbar ab: ab sofort
2.130 € Warmmiete

Objektbeschreibung & Ausstattung

Moderne 4-Zimmer-Etagenwohnung mit gut geschnittenem Grundriss, offenem Wohnbereich und integrierter Einbauküche. Bodentiefe Fenster sorgen für helle Räume, edles Parkett und Fußbodenheizung bieten hohen Wohnkomfort. Die Wohnung verfügt über einen Balkon und zwei modernen Badezimmern.

Alle Besonderheiten:

  • - Fußbodenheizung - Videogegensprechanlage - Moderne Bäder - Bodentiefe Fenster
  • Balkon oder Terrasse zu fast jeder Wohnung - Aufzug - Tiefgaragenstellplätze - Mieterkeller - Großzügiger Innenhof mit Sitz- und Spielmöglichkeiten

Energieausweis

Art: Bedarfsausweis
Baujahr: 2021
Endenergiebedarf: 56 kWh/(m²*a)
Baujahr lt. Energieausweis: 2021
Energieausweis: Bedarfsausweis
Wesentlicher Energieträger: Fernwärme
Energieausweis gültig bis: 23.01.2031
Klasse: B
0 50 100 150 200 250 >250

Lage

Das Lacus Quartier befindet sich in einer ruhigen und familienfreundlichen Gegend des aufstrebenden Berliner Stadtteils Weißensee im Bezirk Pankow, in unmittelbarer Nähe zum begehrten Stadtteil Prenzlauer Berg. Der Standort zeichnet sich durch eine sehr gute Anbindung an den öffentlichen Nahverkehr aus. Innerhalb weniger Gehminuten erreicht man mehrere Tramlinien, mit denen man ohne Umstieg in etwa 20 Minuten ins Berliner Stadtzentrum gelangt. Mit dem Auto ist die Berliner Stadtautobahn in rund 10 Minuten erreichbar. Die Infrastruktur vor Ort ist hervorragend: In direkter Umgebung befinden sich Supermärkte, Bäckereien, Apotheken sowie weitere Geschäfte des täglichen Bedarfs. Auch Schulen, Kitas und medizinische Einrichtungen sind fußläufig erreichbar. Für Naherholung sorgt der nur wenige Minuten entfernte Weiße See mit Parkanlagen, Spielplätzen und einem Strandbad – ein beliebtes Ziel für Spaziergänge und Freizeitaktivitäten.

Sonstiges

ANFRAGEN BITTE ÜBER DAS KONTAKTFORMULAR!

Wir weisen vorsorglich darauf hin, dass bei Abschluss des Mietvertrags eine 12-monatige Mindestmietdauer sowie eine Indexmiete vereinbart wird.

Bitte beachten: Wir respektieren die Privatsphäre der derzeitigen Mieter. Bei den Bildern handelt es sich daher um Aufnahmen einer vergleichbaren Wohnung im selben Objekt. Der Ausstattungsstandard der Wohnungen ist gleich, der Zuschnitt weicht jedoch ab.

HAFTUNGSAUSSCHLUSS:
Diese Anzeige dient nur der ersten Information und stellt kein Vertragsangebot dar. Die Anzeige begründet keine vertraglichen Ansprüche. Alle Angaben wurden nach bestem Wissen und Gewissen zusammengestellt. Für die Richtigkeit der gemachten Angaben übernimmt die Müller Merkle Immobilien GmbH keine Haftung.


Sofortanfrage zum Objekt

    Mit * gekennzeichnete Felder sind Pflichtangaben. Persönliche Daten werden absolut vertraulich behandelt und nicht unbefugt an Dritte weitergegeben.