Der perfekte Start ins Studium: Einziehen und sofort zuhause fühlen

map-pin Königin-Luise-Straße 15, 14195 Berlin
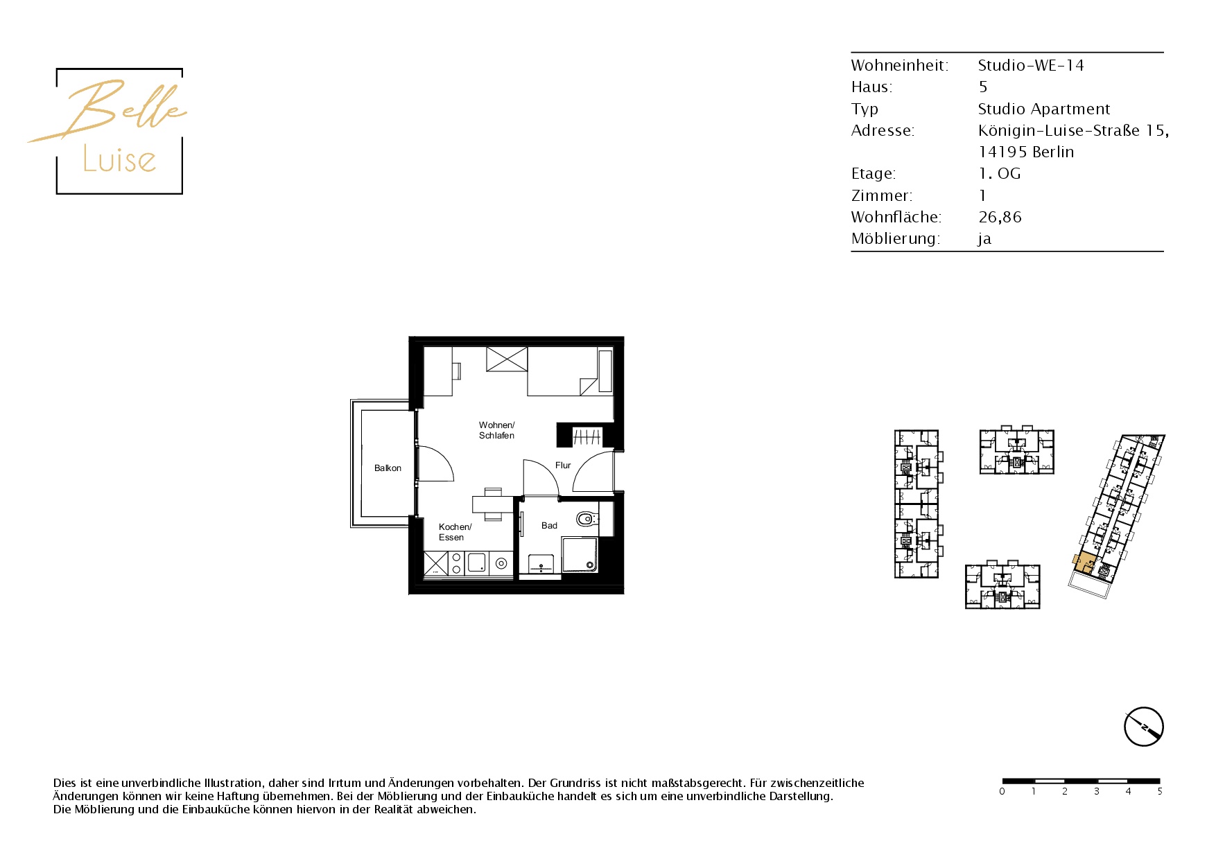
Objekttyp: Apartment
Etage: 1 von 4
ID: b-bl-studio-14
26,86 m²
1
mit Einbauküche
1
Balkon/Terrasse
Kaltmiete: 870 €
Nebenkosten: 95 €
Kaution: 2.610 €
Verfügbar ab: ab sofort
965 € Warmmiete

Objektbeschreibung & Ausstattung

Stylisch, smart, sofort einzugsbereit – dieses 1-Zimmer-Apartment im Neubau vereint urbanes Wohnen mit cleverem Raumkonzept.

Der helle Wohnbereich bietet viel Platz zum Entspannen, Arbeiten oder Gäste empfangen. Die praktische Nische schafft einen separaten Schlafbereich ohne zusätzliche Wände – perfekt gelöst! Der offene Kochbereich ist modern integriert, der Balkon lädt zum Abschalten an der frischen Luft ein.

Im Bad erwartet dich eine bodengleiche Dusche mit cleanem Design und hochwertiger Ausstattung.
Das Apartment ist voll möbliert – mit allem, was du brauchst: unter anderem Bett, Schreibtisch, Kleiderschrank und Esstisch mit Stühlen.

Alle Besonderheiten:

  • Vinyl-Design-Boden in den Wohnräumen
  • Großformatige Feinsteinzeug-Fliesen in den Bädern und im Küchenbereich
  • Fußbodenheizung in allen Wohnbereichen und Bädern
  • Zusätzlicher Handtuchheizkörper in den Bädern
  • Vollausgestattete Einbauküchen in allen Wohnungen
  • Pantryküche in den möblierten Studioapartments
  • Balkon / Terrasse / Dachterrasse
  • 3-fach-Verglasung der Fenster
  • Elektrisch bedienbare Rollläden an allen Fenstern
  • Video-Gegensprechanlage
  • Glasfaseranschluss für schnelles Internet
  • Aufzug
  • Mieterkeller
  • Fernwärme

Energieausweis

Art: Bedarfsausweis
Baujahr: 2025
Endenergiebedarf: 47.9 kWh/(m²*a)
Baujahr lt. Energieausweis: 2025
Energieausweis: Bedarfsausweis
Wesentlicher Energieträger: Fernwärme
Energieausweis gültig bis: 02.05.2035
Klasse: A
0 50 100 150 200 250 >250

Lage

Urban leben, grün genießen – im BELLE LUISE, mitten im historischen Dahlem.
Hier treffen Ruhe, Kultur und Großstadtkomfort aufeinander. Alles für den täglichen Bedarf ist bequem zu Fuß erreichbar: zwei REWE-Märkte, Bäckereien, Cafés, Restaurants, Apotheken, Blumenladen und mehr.

Perfekt für Studierende, Familien und Berufstätige:
Kurze Wege zu Uni, Kitas, Schulen und Bibliotheken, dazu viel Grün und Freizeitangebote wie der Botanische Garten, Spielplätze und die Domäne Dahlem mit Hofladen und Eventprogramm.

Schnell mobil: U3, diverse Buslinien, schnelle Anbindung an die B1 und A100 – ob City, Büro oder Ausflug ins Grüne: alles liegt in Reichweite.

Sonstiges

Wir bitten Sie Terminanfragen über das Kontaktformular zu senden.

Bei den Bildern handelt es sich um Aufnahmen der Musterwohnung. Gerne können Sie sich im Zuge einer Besichtigung der Musterwohnung selbst vom BELLE LUISE überzeugen.

Wir weisen vorsorglich darauf hin, dass im Falle einer Anmietung mietvertraglich ein Kündigungsverzicht von 12 Monaten vereinbart wird.

Alle Infos zum Projekt unter http://www.belle-luise.de/

HAFTUNGSAUSSCHLUSS:
Diese Anzeige dient nur der ersten Information und stellt kein Vertragsangebot dar. Die Anzeige begründet keine vertraglichen Ansprüche. Der Inhalt und die Angaben wurden nach bestem Wissen und Gewissen ermittelt. Für Richtigkeit und Vollständigkeit wird keine Haftung übernommen.


Sofortanfrage zum Objekt

    Mit * gekennzeichnete Felder sind Pflichtangaben. Persönliche Daten werden absolut vertraulich behandelt und nicht unbefugt an Dritte weitergegeben.