Dachgeschoss - Perfekte Familien oder WG-Wohnung - Schöne 4-Zimmer-Wohnung mit Einbauküche

map-pin Schmohlstraße 2, 13086 Berlin
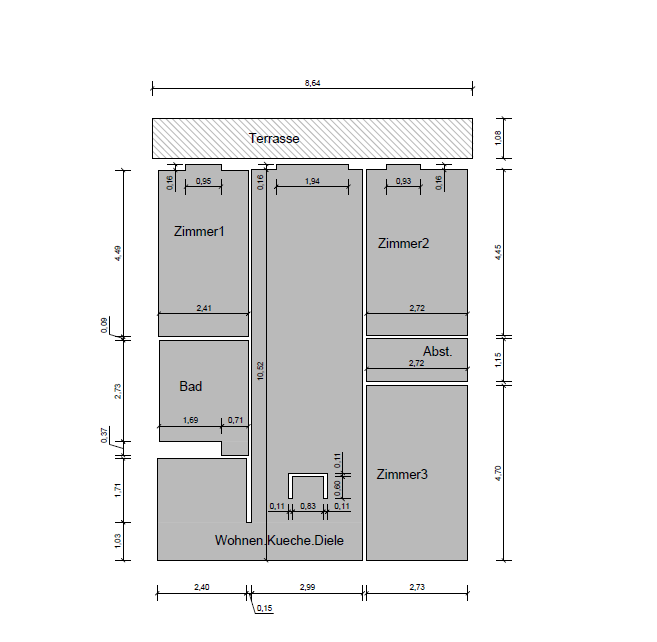
Objekttyp: Terrassenwohnung
Etage: 4 von 5
ID: LQ_E405
88,88 m²
4
mit Einbauküche
1
Kaltmiete: 1.700 €
Nebenkosten: 340 €
Kaution: 5.100 €
Verfügbar ab: ab sofort
2.040 € Warmmiete

Objektbeschreibung & Ausstattung

Moderne 4-Zimmer-Wohnung im 4. Obergeschoss mit großzügigem Wohnbereich und integrierter Einbauküche. Die gut geschnittenen Räume bieten viel Platz und Helligkeit. Eine sonnige Terrasse und ein stilvolles Badezimmer sorgen für hohen Wohnkomfort in urbaner Lage.

Alle Besonderheiten:

  • - Fußbodenheizung - Videogegensprechanlage - Moderne Bäder - Bodentiefe Fenster
  • Balkon oder Terrasse zu fast jeder Wohnung - Aufzug - Tiefgaragenstellplätze - Mieterkeller - Großzügiger Innenhof mit Sitz- und Spielmöglichkeiten

Energieausweis

Art: Bedarfsausweis
Baujahr: 2021
Endenergiebedarf: 56 kWh/(m²*a)
Baujahr lt. Energieausweis: 2021
Energieausweis: Bedarfsausweis
Wesentlicher Energieträger: Fernwärme
Energieausweis gültig bis: 23.01.2031
Klasse: B
0 50 100 150 200 250 >250

Lage

Das Lacus Quartier befindet sich in einer ruhigen und familienfreundlichen Gegend des aufstrebenden Berliner Stadtteils Weißensee im Bezirk Pankow, in unmittelbarer Nähe zum begehrten Stadtteil Prenzlauer Berg. Der Standort zeichnet sich durch eine sehr gute Anbindung an den öffentlichen Nahverkehr aus. Innerhalb weniger Gehminuten erreicht man mehrere Tramlinien, mit denen man ohne Umstieg in etwa 20 Minuten ins Berliner Stadtzentrum gelangt. Mit dem Auto ist die Berliner Stadtautobahn in rund 10 Minuten erreichbar. Die Infrastruktur vor Ort ist hervorragend: In direkter Umgebung befinden sich Supermärkte, Bäckereien, Apotheken sowie weitere Geschäfte des täglichen Bedarfs. Auch Schulen, Kitas und medizinische Einrichtungen sind fußläufig erreichbar. Für Naherholung sorgt der nur wenige Minuten entfernte Weiße See mit Parkanlagen, Spielplätzen und einem Strandbad – ein beliebtes Ziel für Spaziergänge und Freizeitaktivitäten.


Sofortanfrage zum Objekt

    Mit * gekennzeichnete Felder sind Pflichtangaben. Persönliche Daten werden absolut vertraulich behandelt und nicht unbefugt an Dritte weitergegeben.