Blick über die Stadt! Helle 2-Zimmer-Neubauwohnung mit EBK

map-pin Marktplatz 9, 79312 Emmendingen
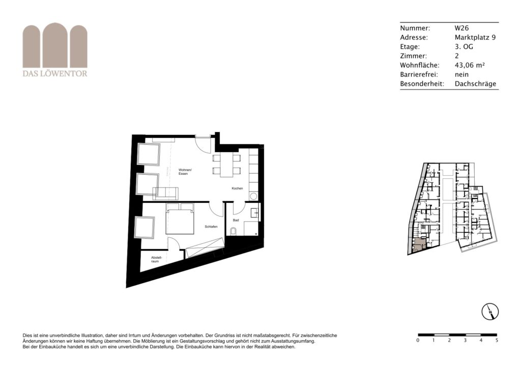
Objekttyp: Etagenwohnung
Etage: 3 von 3
ID: em_loe_26
43,06 m²
2
mit Einbauküche
2
Kaltmiete: 895 €
Nebenkosten: 155 €
Kaution: 2.685,00 €
Verfügbar ab: ab sofort
1.050 € Warmmiete

Objektbeschreibung & Ausstattung

Die lichtdurchflutete 2-Zimmer-Wohnung präsentiert sich mit einer Dachschräge und großen Dachflächenfenstern. Sie verfügt über eine vollausgestattete Einbauküche sowie über ein modernes Duschbad. Das geräumige Schlafzimmer und der Abstellraum runden das Wohnkonzept ab.

Alle Besonderheiten:

  • Eiche-Parkettboden in den Wohnräumen
  • Fliesenböden in den Badezimmern
  • Fußbodenheizung
  • Einbauküche
  • Balkon, Terrasse oder Dachterrasse zu einigen Wohnungen
  • Mehrfach verglaste Fenster gem. Kfw-55-Standard
  • Elektrisch betriebene Rollläden
  • Aufzug
  • Breitband-Kabel bzw. Glasfaseranschluss
  • Gegensprechanlage

Energieausweis

Art: Bedarfsausweis
Baujahr: 2025
Endenergiebedarf: 21.5 kWh/(m²*a)
Baujahr lt. Energieausweis: 2025
Energieausweis: Bedarfsausweis
Wesentlicher Energieträger: Gas
Energieausweis gültig bis: 19.01.2035
Klasse: A+
0 50 100 150 200 250 >250

Lage

Direkt am Markplatz von Emmendingen gelegen, bietet das LÖWENTOR modernes Wohnen in verkehrsberuhigter Innenstadtlage und eine Nahversorgung mit kurzen Wegen. Rund um den Marktplatz sorgen zwei Optiker, zwei Arztpraxen, ein Kiosk, eine Apotheke, ein Restaurant mit Freisitz, eine Metzgerei, und verschiedenste Ladengeschäfte für Leben in der City. Ein REWE Supermarkt, eine Bäckerei und ein Kindergarten liegen im näheren Umkreis zwischen 120 und 300 Metern. Die Bushaltestelle Marktplatz ist 50 Meter entfernt, der Bahnhof Emmendingen ist nach fünf Minuten zu Fuß erreicht.


Sofortanfrage zum Objekt

    Mit * gekennzeichnete Felder sind Pflichtangaben. Persönliche Daten werden absolut vertraulich behandelt und nicht unbefugt an Dritte weitergegeben.