Ansprechende 3-Zimmer-Wohnung im neuen Quartier

map-pin In den Diken 9, 40472 Düsseldorf
Objekttyp: Etagenwohnung
Etage: 2 von 4
ID: HC_36
90,07 m²
3
mit Einbauküche
1
Kaltmiete: 1.495 €
Nebenkosten: 280 €
Kaution: 4.485 €
Verfügbar ab: 01.12.2025
1.775 € Warmmiete

Objektbeschreibung & Ausstattung

Die Wohnung ist Teil des Neubauprojekts HEINRICH CARRÉ und liegt im Düsseldorfer Stadtteil Rath. Bei dem Objekt handelt es sich um einen Neubau mit Erstbezug.

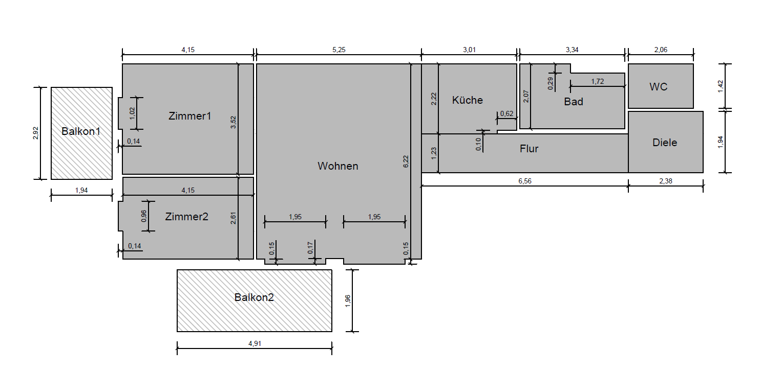
Bei 73 bis 113 Quadratmetern finden Sie im HEINRICH CARRÉ eine 3-Zimmer-Wohnung, die zu Ihnen passt! Die inserierte Wohnung verfügt über ein Schlafzimmer, ein weiteres Zimmer und einen Wohn- und Essbereich mit offener Küche, sowie einem Duschbad und Abstellraum. Die Terrasse lädt zum Verweilen ein.
Insgesamt entstehen im Heinrich Carré 97 Wohnungen und 9 Townhouses, sowie eine Tiefgarage mit 75 PKW-Stellplätzen für die Mieter. Der begrünte Innenhof bietet Sitzflächen und dient als Begegnungsort der Wohnanlage.

Alle Besonderheiten:

  • Modern und praktisch geschnitten, bieten die Wohnungen und Townhouses nicht nur einen hohen energetischen Standard, sondern auch eine schicke Innenausstattung. Hochwertige Einbauküchen, bodentiefe Fenster, Marken-Badkeramik, bodengleiche Duschen und ein zeitloses Wand- und Bodendesign bieten die perfekte Grundlage für eine individuelle Gestaltung der Wohnungen.
  • Eichenechtholzparkett in den Wohnräumen
  • Hochwertige Fliesenböden in Bad und WC
  • Fußbodenheizung
  • zusätzlicher Handtuchheizkörper in den Bädern
  • Einbauküche mit Markengeräten
  • Mehr-Scheiben-Isolierverglasung (Dreifachverglasung)
  • elektrisch bedienbare Rollläden
  • Balkon, Loggia, Terrasse oder Dachterrasse
  • Aufzug
  • Gegensprechanlage
  • Digitale Haustafel

Energieausweis

Art: Bedarfsausweis
Baujahr: 2025
Endenergiebedarf: 48.6 kWh/(m²*a)
Baujahr lt. Energieausweis: 2025
Energieausweis: Bedarfsausweis
Wesentlicher Energieträger: keine Angabe
Energieausweis gültig bis: 24.02.2035
Klasse: A
0 50 100 150 200 250 >250

Lage

Das neue Wohnquartier Heinrich Quartier profitiert von der gewachsenen Infrastruktur im Viertel. Ob täglicher Einkauf oder Spielplatzbesuch, Sporttreiben oder Essengehen – alles ist unkompliziert und auf kurzen Wegen möglich. Das Bildungsangebot im Stadtteil reicht von drei Grundschulen bis zu zwei weiterführenden Schulen.

Am nahe gelegenen Bahnhof Düsseldorf-Rath hält die S-Bahn-Linie 6 (Köln-Essen). Von hier aus ist der Düsseldorfer Hauptbahnhof in nur 12 Minuten zu erreichen. Neben der Straßenbahnlinie 701, den Buslinien 730 und 776, bietet auch die Stadtbahnlinie U 72, die in unmittelbarer Nähe des Objekts hält, bequeme Mobilität innerhalb des Stadtteils und darüber hinaus.

Die Nähe zum Aaper Wald, der nicht nur puren Naturgenuss, sondern auch eine Vielzahl an Sportanlagen wie bspw. das Rather Waldstadion oder die 7-Hügel MTB BMX bietet, begeistert nicht nur Familien. Ebenso begeisternd ist die Nähe zur Düsseldorfer Innenstadt, wo man neben Shopping und Sightseeing auch das bunte Kultur- und Nachtleben genießen kann.


Sofortanfrage zum Objekt

    Mit * gekennzeichnete Felder sind Pflichtangaben. Persönliche Daten werden absolut vertraulich behandelt und nicht unbefugt an Dritte weitergegeben.