*Jetzt Umzugsbonus sichern!* 4-Zimmer-Neubauwohnung mit besonderem Schnitt!

map-pin Marktplatz 9, 79312 Emmendingen
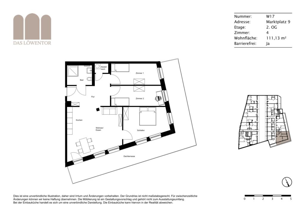
Objekttyp: Etagenwohnung
Etage: 2 von 3
ID: em_loe_17
111,13 m²
4
mit Einbauküche
1
Balkon/Terrasse
Kaltmiete: 1.795 €
Nebenkosten: 390 €
Kaution: 5.385,00 €
Verfügbar ab: ab sofort
2.185 € Warmmiete

Objektbeschreibung & Ausstattung

*Jetzt Umzugsbonus sichern! Bei der Anmietung zum ersten eines Monats wird Ihnen die erste* Nettokaltmiete erlassen.*

Die angebotene 4-Zimmerwohnung verfügt über einen geräumigen Flurbereich von welchem das moderne Duschbad, der Abstellraum sowie zwei von drei Schlafzimmern erreichbar sind. Mit einem offenen Wanddurchbruch schließt sich der großzügige nach Süden ausgerichtete Wohnbereich an, welcher mit einer Einbauküche ausgestattet ist und den Zugang zur Dachterrasse ermöglicht. Die Dachterrasse umrahmt die gesamte Wohnung. Das dritte Schlafzimmer erreicht man über das Wohnzimmer.

Alle Besonderheiten:

Alle Besonderheiten des Objekts DAS LÖWENTOR auf einen Blick:
- Eiche-Parkettboden in den Wohnräumen
- Fliesenböden in den Badezimmern
- Fußbodenheizung
- Einbauküche
- Balkon, Terrasse oder Dachterrasse zu einigen Wohnungen
- Mehrfach verglaste Fenster gem. Kfw-55-Standard
- Elektrisch betriebene Rollläden
- Aufzug
- Breitband-Kabel bzw. Glasfaseranschluss
- Gegensprechanlage

Energieausweis

Art: Bedarfsausweis
Baujahr: 2025
Endenergiebedarf: 21.5 kWh/(m²*a)
Baujahr lt. Energieausweis: 2025
Energieausweis: Bedarfsausweis
Wesentlicher Energieträger: Gas
Energieausweis gültig bis: 19.01.2035
Klasse: A+
0 50 100 150 200 250 >250

Lage

Direkt am Markplatz von Emmendingen gelegen, bietet das LÖWENTOR modernes Wohnen in verkehrsberuhigter Innenstadtlage und eine Nahversorgung mit kurzen Wegen. Rund um den Marktplatz sorgen zwei Optiker, zwei Arztpraxen, ein Kiosk, eine Apotheke, ein Restaurant mit Freisitz, eine Metzgerei, und verschiedenste Ladengeschäfte für Leben in der City. Ein REWE Supermarkt, eine Bäckerei und ein Kindergarten liegen im näheren Umkreis zwischen 120 und 300 Metern. Die Bushaltestelle Marktplatz ist 50 Meter entfernt, der Bahnhof Emmendingen ist nach fünf Minuten zu Fuß erreicht.

Sonstiges

Wir bitten Sie Terminanfragen über das Kontaktformular zu senden.
Bei den Bildern handelt es sich um unverbindliche Visualisierungen und Bilder der Musterwohnung. Gerne können Sie sich im Zuge einer Besichtigung der Musterwohnung selbst vom Projekt DAS LÖWENTOR überzeugen.

HAFTUNGSAUSSCHLUSS:
Diese Anzeige dient nur der ersten Information und stellt kein Vertragsangebot dar. Die Anzeige begründet keine vertraglichen Ansprüche. Der Inhalt und die Angaben wurden nach bestem Wissen und Gewissen ermittelt. Für Richtigkeit und Vollständigkeit wird keine Haftung übernommen.

Sofortanfrage zum Objekt

    Mit * gekennzeichnete Felder sind Pflichtangaben. Persönliche Daten werden absolut vertraulich behandelt und nicht unbefugt an Dritte weitergegeben.