1. Kaltmiete geschenkt! Moderne 2-Zimmer Wohnung mit Balkon

map-pin Grünhofer Weg 40, 13581 Berlin
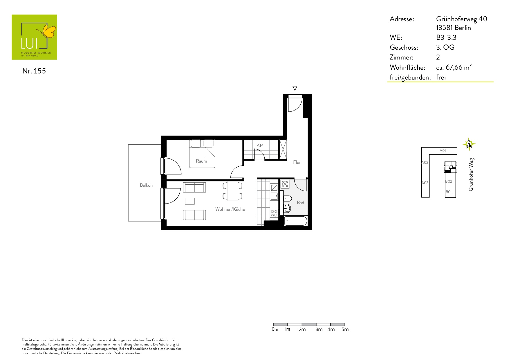
Objekttyp: Etagenwohnung
Etage: 3 von 4
ID: B-LUI-155-4
68,47 m²
2
mit Einbauküche
1
Balkon/Terrasse
Kaltmiete: 1.100 €
Nebenkosten: 265 €
Kaution: 3.300 €
Verfügbar ab: sofort
1.365 € Warmmiete

Objektbeschreibung & Ausstattung

In schlicht zurückgenommener, ansprechend moderner Architektur stehen im LUI insgesamt 167 Mietwohnungen - davon 32 gefördert - zur Anmietung bereit. Das Ensemble besteht aus einem L- sowie einem I-förmigen Gebäudeteil mit jeweils vier Vollgeschossen sowie einem Staffelgeschoss. Zusammen ergeben sie eine U-förmige Wohnanlage mit einem weitläufigen, sorgfältig begrünten Innenhof. Hier machen Spielen und Verweilen Spaß!

Die exklusiven 2-Zimmer Wohnungen im LUI bieten von kompakten 42 bis großzügigen 82 Quadratmetern alles, was sich Singles und Paare wünschen. Jede begeistert mit einer optimalen Raumausnutzung und einem hohen Standard. Von einer voll ausgestatteten Einbauküche, bis hin zu durchgängig verlegter Fußbodenheizung oder hochwertigen Armaturen und Einbauten in den modernen Bädern fehlt es im LUI an nichts. Zusätzlich sorgen bodentiefe Schallschutzfenster und Fenstertüren gleichermaßen für viel Licht und wohlige Ruhe.

Die hier angebotene 2-Zimmer Wohnung betreten Sie über einen Flur. Von diesem aus gelangt man in alle Räume. Zur Wohnung gehört ein helles Schlafzimmer, ein modernes Badezimmer mit Badewanne und Waschmaschinenanschluss, ein praktischer Abstellraum sowie ein eleganter Wohnbereich mit offener Küche. Den Balkon erreichen Sie über den Schlaf- und Wohnbereich.

Alle Besonderheiten:

  • Einbauküche mit Markengeräten
  • Fußbodenheizung in der gesamten Wohnung
  • Balkon, Terrasse oder Dachterrasse
  • bodentiefe Fenster
  • elektrischer Sonnenschutz im Erdgeschoss, Plissées in den Obergeschossen
  • Eichenechtholzparkett in den Wohnbereichen und Fluren
  • Dusch- und Wannenbäder mit großformatigen Fliesen, Handtuchheizkörpern, hochwertigen Armaturen und Markenfabrikat-Einbauten
  • Waschmaschinenanschluss in jeder Wohnung
  • Aufzug zu allen Geschossen
  • Gegensprechanlage
  • Mieterkeller

Energieausweis

Art: Bedarfsausweis
Baujahr: 2020
Endenergiebedarf: 56 kWh/(m²*a)
Baujahr lt. Energieausweis: 2020
Energieausweis: Bedarfsausweis
Wesentlicher Energieträger: Fernwärme
Energieausweis gültig bis: 16.02.2030
Klasse: B
0 50 100 150 200 250 >250

Lage

Spandau, im Nordwesten von Berlin gelegen, bietet gleichermaßen urbanes Flair und dörfliche Beschaulichkeit. Das Herz des vielseitigen Bezirks ist die von der Havel umflossene Altstadt mit Fußgängerzone, Marktplatz und Havelpromenade. Hier locken zahlreiche Geschäfte, eine vielfältige Gastronomie und regelmäßige Feste und Märkte. Auch Wald und Wasser – und damit exzellente Möglichkeiten zur Naherholung – bietet Spandau reichlich.

Bis zum S-, U-, Regional- und ICE-Bahnhof Spandau spazieren Sie vom Domizil LUI etwa 15 Minuten. Noch schneller erreichen Sie ihn mit dem Bus von der nahegelegenen Haltestelle Grünhofer Weg. Von hier beträgt die Gesamtfahrtzeit bis zum Berliner Hauptbahnhof etwa 25 Minuten. Innerhalb Spandaus radeln Sie etwa sieben Minuten bis in die Altstadt. Mit dem Auto benötigen Sie etwa 20 Minuten bis zum Flughafen Tegel, zur A100 sind es etwa 15 Minuten.

Nur 350 Meter von LUI entfernt, erwartet Sie ein moderner, gut sortierter Supermarkt. Weitere Märkte, Discounter und Bäckereien befinden sich in der näheren Umgebung. Auch mit Arztpraxen, Kliniken und Apotheken sind Sie hier bestens versorgt. Darüber hinaus gibt es mehrere Kitas und Kindergärten sowie eine Grund- und eine Oberschule in Fußnähe. Und gleich gegenüber vom Domizil freut sich ein Fitnessstudio auf Ihren Besuch!

Sonstiges

ANFRAGEN BITTE ÜBER DAS KONTAKTFORMULAR


BITTE BEACHTEN!
Wir respektieren den Wunsch der Mieter auf Privatsphäre. Bei den Bildern handelt es sich daher um
Bilder einer Musterwohnung im gleichen Objekt. Der Zuschnitt der angebotenen Wohnung
entspricht nicht den Bildern. Die Ausstattung (Böden, Wände, Küche, etc.) ist jedoch in allen
Wohnungen identisch.


Wir weisen vorsorglich darauf hin, dass bei Abschluss des Mietvertrags eine Mindestmietdauer von 12 Monaten sowie eine Indexmiete vereinbart werden.


HAFTUNGSAUSSCHLUSS:
Diese Anzeige dient nur der ersten Information und stellt kein Vertragsangebot dar. Die Anzeige begründet keine vertraglichen Ansprüche. Der Inhalt und die Angaben wurden nach bestem Wissen und Gewissen ermittelt. Für Richtigkeit und Vollständigkeit wird keine Haftung übernommen. Die Grundrisse sind nicht zur Maßentnahme geeignet. Bei den Flächenangaben handelt es sich um Planmaße. Die Wohnung wird nicht möbliert vermietet.


Sofortanfrage zum Objekt

    Mit * gekennzeichnete Felder sind Pflichtangaben. Persönliche Daten werden absolut vertraulich behandelt und nicht unbefugt an Dritte weitergegeben.