Ideal für Singles oder Paare! Genütliche 2-Zimmer-Wohnung mit Loggia!

map-pin Annemarie-Renger-Straße 3g, 55130 Mainz
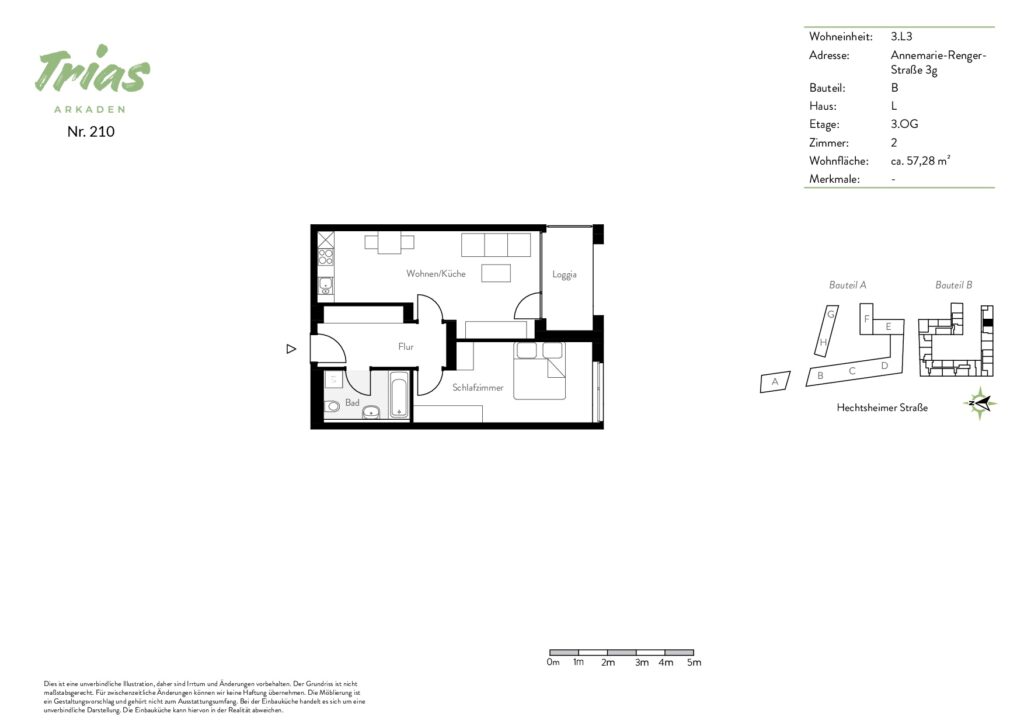
Objekttyp: Etagenwohnung
Etage: 3 von 5
ID: MZ-TA-3.L3
57,28 m²
2
mit Einbauküche
1
Balkon/Terrasse
Kaltmiete: 1.040 €
Nebenkosten: 115 €
Kaution: 3.120 €
Verfügbar ab: 01.01.2026
1.155 € Warmmiete

Objektbeschreibung & Ausstattung

Die hier angebotene 2-Zimmer-Wohnung verfügt über einen komibinierten Wohn- und Essbereich mit offener Küche (inkl. Einbauküche). Das Schlafzimmer und das moderne Wannenbad (inkl. Waschmaschinenanschluss) sind über den Flur erreichbar. Die vom Wohnbereich aus begehbare Loggia lädt zum Verweilen ein.

Bitte beachten Sie, dass diese Wohnung bereits vermietet war und es sich um eine Zweitvermietung handelt!

Diese Wohnung vereint, was sich viele Menschen heute von ihrem Zuhause wünschen: ansprechende Architektur, sorgfältig geplante Außenanlagen und eine zeitgemäße Ausstattung.
Das Objekt besteht aus insgesamt 242 Wohnungen in mehreren Einzelgebäuden, mit jeweils fünf Geschossen. Diese sind wiederum über Aufzüge erschlossen.

Die täglichen Einkäufe und Erledigungen werden zum Kinderspiel.
In den Erdgeschossen sind ein Supermarkt mit regionalem (Bio-)Sortiment, ein Drogeriemarkt und eine Kindertagesstätte vorhanden.

Alle Besonderheiten:

  • Fußbodenheizung in der ganzen Wohnung
  • gespeist durch Fernwärme
  • moderne Einbauküche
  • Balkon, Terrasse und/oder Loggia
  • Parkett in den Wohnbereichen sowie den Fluren
  • hochwertige Boden- und Wandfliesen in den Badezimmern und WCs
  • Bäder mit Wannen und/oder Duschen
  • Waschmaschinenanschluss in der Wohnung
  • bodentiefe Fensterfronten
  • Zugang mittels Aufzug

Energieausweis

Art: Bedarfsausweis
Baujahr: 2020
Endenergiebedarf: 44.7 kWh/(m²*a)
Baujahr lt. Energieausweis: 2020
Energieausweis: Bedarfsausweis
Wesentlicher Energieträger: Fernwärme
Energieausweis gültig bis: 16.05.2030
Klasse: A
0 50 100 150 200 250 >250

Lage

Wohnen, arbeiten, entspannen!

Zwischen Hechtsheimer Straße und Heiligkreuzweg, ist mit dem Heiligkreuz-Viertel ein attraktives neues Stadtquartier entstanden.

Dabei verbindet das Heiligkreuz-Viertel die Vorzüge des Stadtlebens mit der Nähe zur Natur, denn sowohl das Rheinufer als auch der Grüngürtel mit dem Volkspark sind fußläufig zu erreichen. Im Quartier selbst sind zwei großzügige Parks sowie eine Grünachse mit zahlreichen Spiel- und Aufenthaltsmöglichkeiten.

Wohnen mit kurzen Wegen!

Viele Einrichtungen des täglichen Bedarfs sind nur wenige Gehminuten entfernt! So gibt es einen Super- und einen Drogeriemarkt direkt im Objekt!
Darüber hinaus sind Sie verkehrstechnisch bestens angebunden. So sind es von der nahegelegenen Haltestelle Martin-Luther-Straße nur 12 Busminuten bis zum Hauptbahnhof. Etwa sieben bis maximal 14 Autominuten sind es bis zu den Autobahnen A60 und A63, sowie zur A671 und zur A643. Bis zum Frankfurt Airport brauchen Sie etwa 20 Minuten.


Sofortanfrage zum Objekt

    Mit * gekennzeichnete Felder sind Pflichtangaben. Persönliche Daten werden absolut vertraulich behandelt und nicht unbefugt an Dritte weitergegeben.